6 000 000 Р 77 950 $ или 66 660

Информация о коттедже

102 м2
Площадь
2
Этажность
8 cоток
Участок

Дополнительная информация

Дом продаётся вместе с участком
есть
Развернуть
Агент
+7 (939) 408-77-71
Начать чат с агентом

Дом в Волгоградская область, Дубовка ул. Имени Ломоносова, 21 (102 м)

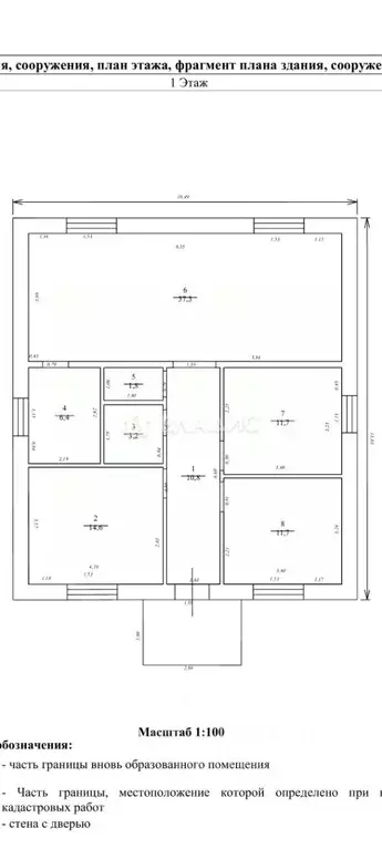
Продается кирпичный дом общей площадью 211,4м2 на участке 822м2. Дом двухэтажный:1й этаж 146,12м2 - 3 спальни 24/12/10м2, гостиная 28м2, кухня 9,8м2, закрытая оранжерея с искусственным освещением 27м2, раздельный санузел, прихожая, котельная. Есть погреб.2й этаж - комната 65,3м2 с выходом на летнюю остекленную веранду.Отопление и ГВС от двухконтурного котла, водоснабжение централизованное, есть поливочный водопровод, канализация в септик. Счетчики на газ, воду, эл.энергию установлены.При продаже остается сплитсистема, кухонный гарнитур, мебель по договоренности. На участке есть кирпичный гараж площадью 40,6м2 (высота потолка 3,35м)Теплица, парник, кирпичный сарай. Проведена разводка поливочной системы.Участок ровный, правильной формы, без перепадов высот.Если есть желание, можете приобрести смежный участок площадью 490м2 на котором расположены кирпичные Отапливаемое (теплые полы) здание свободной планировки с проведенными коммуникациями для кухни и санузла, Летняя кухня, Баня, Беседка, Уличный бассейн, Курятник, Летний душ и уличный туалет. Доплата 1200т.рб(при покупке отдельно- цена выше).До автобусной остановки 450 метров, до школы и детсада 15-20 минут пешком, до ближайшего продуктового магазина 200метров, до пляжа 10 минут пешком. Код пользователя: 162980Номер в базе: 7336280

Читать полностью

    Для того, чтобы купить 2-этажный коттедж по адресу: Дубовка, ул. Имени Ломоносова, 21, позвоните по телефону +7 (939) 408-77-71. Торопитесь! Объявление №50015743548 о продаже двухэтажного коттеджа опубликовано 09 апреля 2026.

    Позвонить Написать
    6 000 000 Р77 950 $ или 66 660
    Агент
    +7 (939) 408-77-71
    Начать чат с агентом
    Похожие предложения
    Дом в Волгоградская область, Волгоград пос. Участок ВПЭЛС, ул. ... - Фото 1
    Дом в Волгоградская область, Волгоград пос. Участок ВПЭЛС, ул. ... - Фото 2
    1 этаж, общая площадь 105м², участок 5 соток

    Код объекта: 2095481.Продаётся уютный и просторный дом в Волгограде, посёлок Участок ВПЭЛС 5, Серноводская улица. Площадь участка: 5.5 соток.Площадь дома: 105.4 кв. метра.Количество комнат: 3.Этот кирпичный дом построен по современным стандартам качества...
    • 1 эт.
    • 105 м²
    • 5 сот.
    6 000 000 Р
    Агент
    +7 (918) Показать номер
    Посмотреть контакты
    Дом в Волгоградская область, Волгоград Поселок Горная Поляна тер., ул. ... - Фото 1
    Дом в Волгоградская область, Волгоград Поселок Горная Поляна тер., ул. ... - Фото 2
    1 этаж, общая площадь 102м², участок 6 соток

    Продается уютный дом в сосновом раю тишина, свежий воздух и комфорт Адрес: г. Волгоград, поселок Горная Поляна, ул. Угловая Участок: 6 соток (ИЖС, собственность) Площадь дома:102 м Комнат: 4 (просторные и светлые) Этажность:** 1 этаж + терраса.О доме:1-й...
    • 1 эт.
    • 102 м²
    • 6 сот.
    5 900 000 Р
    Агент
    +7 (918) Показать номер
    Посмотреть контакты
    Дом в Волгоградская область, Волгоград Чирская ул. (55 м) - Фото 1
    Дом в Волгоградская область, Волгоград Чирская ул. (55 м) - Фото 2
    1 этаж, общая площадь 55м², участок 6 соток

    Продается дом в Дзержинском районе по улице Чирская. Участок: 6 соток. Площадь дома: 55,3 кв.м., в жилом состоянии. Планировка: - Первый этаж: кухня, три жилые комнаты, санузел. Инфраструктура: - Школы, детские сады, остановка общественного транспорта...
    • 1 эт.
    • 55 м²
    • 6 сот.
    6 000 000 Р
    Агент
    +7 (939) Показать номер
    Посмотреть контакты
    Дом в Волгоградская область, Краснослободск Среднеахтубинский район, ... - Фото 1
    Дом в Волгоградская область, Краснослободск Среднеахтубинский район, ... - Фото 2
    1 этаж, общая площадь 102м², участок 4 сотки

    Код объекта: 2095144.Продаётся современный одноэтажный кирпичный дом по адресу: Волгоградская область, Среднеахтубинский район, Краснослободск, Просторная улица.Площадь дома: 102,1 кв. м.Площадь участка: 4,87 соток.Дом построен в 2024 году из качественных...
    • 1 эт.
    • 102 м²
    • 4 сот.
    6 000 000 Р
    Агент
    +7 (918) Показать номер
    Посмотреть контакты
    Дом в Волгоградская область, Светлоярский район, Кировское с/пос, ... - Фото 1
    Дом в Волгоградская область, Светлоярский район, Кировское с/пос, ... - Фото 2
    1 этаж, общая площадь 105м², участок 8 соток

    Предлагаем новый дом 2025 года постройки Подходит под семейную ипотеку 6 Дом полностью готов к проживанию Подключены все коммуникации- центральное водоснабжение, газ, электричество, установлен септик на четыре кольца Дом из керамзитобетонного блока...
    • 1 эт.
    • 105 м²
    • 8 сот.
    6 000 000 Р
    Агент
    +7 (911) Показать номер
    Посмотреть контакты

    Не нашли подходящего объявления?

    Оставьте заявку, и наши риэлторы подберут купить дом в районе Дубовки

    (0)