4 600 000 Р 58 800 $ или 50 650

Информация о коттедже

125 м2
Площадь
2
Этажность
8 cоток
Участок

Дополнительная информация

Дом продаётся вместе с участком
есть
Развернуть
Агент
+7 (901) 637-35-40
Начать чат с агентом

Дом в Волгоградская область, Калач-на-Дону ул. Пушкина, 102 (125 м)

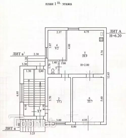
Предлагаем Вашему вниманию просторный дом с выходом к реке Дон Дом расположен по адресу п.Черкасов по улице Пушкина .Общая площад :125.3 кв.мКомнаты : 31.9; 10.2; 19 ; 10.8 ; 10.8 кв.м:Кухня:19.7кв.м.Сан узел раздельный в доме.В дом заведены все коммуникации :Вода( скважина)ГазСлив .Лестница на второй этаж очень удобная.На втором этаже имеется просторная лоджия 3.2 кв.м.,которая прекрасно подойдет для отдыха. С лоджии открывается прекрасный вид на реку Дон Дом расположен на участке 8.36 соток.Назначения участка ИЖСНа территории имеются хоз постройки : Гараж (стены кирпич)Сарай (кирпич)Подвал(сухой,пристроен к дому)Так же во дворе имеются плодовые деревья и кустарники.Для красоты перед домом имеются клумбы с цветами.Улица широкая.Удобные подъездные пути Так же в пешей доступности остановка общественного транспорта,магазин,школа. Цена Остались вопросы? Звоните Не упустите свой шанс стать счастливым обладателем дома на берегу Данная недвижимость подходит под все виды жилищных сертификатов,а так же под ипотеку Номер объекта: 1/537158/19210

Читать полностью

    Для того, чтобы купить 2-этажный коттедж по адресу: Калач-на-Дону, ул. Пушкина, 102, позвоните по телефону +7 (901) 637-35-40. Торопитесь! Объявление №50016151281 о продаже двухэтажного коттеджа опубликовано 26 ноября 2025.

    Позвонить Написать
    4 600 000 Р58 800 $ или 50 650
    Агент
    +7 (901) 637-35-40
    Начать чат с агентом
    Похожие предложения
    Дом в Волгоградская область, Светлоярский район, с. Большие Чапурники ... - Фото 1
    Дом в Волгоградская область, Светлоярский район, с. Большие Чапурники ... - Фото 2
    1 этаж, общая площадь 118м², участок 12 соток

    Продается просторный дом в с. Большие Чапурники, Светлоярского района расположенный по улице Сарпинская . Этот одноэтажный дом площадью 118,9 квадратных метров, из которых 80 квадратных метров занимает жилое пространство, а 13 квадратных метров отведено...
    • 1 эт.
    • 118 м²
    • 12 сот.
    4 650 000 Р
    Агент
    +7 (918) Показать номер
    Посмотреть контакты
    Дом в Волгоградская область, Волжский Вишневый сад СНТ, ул. ... - Фото 1
    Дом в Волгоградская область, Волжский Вишневый сад СНТ, ул. ... - Фото 2
    2 этажа, общая площадь 88м², участок 3 сотки

    Продается дом по адресу: Экскаваторная улица, СНТ Вишневый Сад, город Волжский для круглогодичного проживания дружной семьи, предпочитающей уют и свободу, для жизни вдали от городского шума и суеты.Площадь участка: 3 соток.Площадь дома: 88,5 кв. метров.Количество...
    • 2 эт.
    • 88 м²
    • 3 сот.
    4 600 000 Р
    Агент
    +7 (989) Показать номер
    Посмотреть контакты
    Дом в Волгоградская область, Волгоград ул. Левитана (287 м) - Фото 1
    Дом в Волгоградская область, Волгоград ул. Левитана (287 м) - Фото 2
    3 этажа, общая площадь 286м², участок 5 соток

    Дом в поселке Селезнёвка — отличное предложение для жизни и/или бизнеса Кирпичный дом с железобетонными перекрытиями 1995 года постройки, основательный, строили на века.Дом 286,9 кв.м. состоит из 2 этажей и цокольного этажа (подвал). Высота потолков по...
    • 3 эт.
    • 286 м²
    • 5 сот.
    4 500 000 Р
    Агент
    +7 (988) Показать номер
    Посмотреть контакты
    Дом в Волгоградская область, Волгоград ул. Карла Либкнехта, 12 (53 м) - Фото 1
    Дом в Волгоградская область, Волгоград ул. Карла Либкнехта, 12 (53 м) - Фото 2
    1 этаж, общая площадь 52м², участок 2 сотки

    Код объекта: 1894562.В продаже дом по адресу: Волгоград, улица Карла Либкнехта.Площадь участка: 2 сотки.Материал постройки: кирпичный.Этажность: 1 этаж.Общая площадь: 52,5 кв. м.Жилая площадь: 33,4 кв. м.Площадь кухни: 4 кв. м.Количество комнат: 3 (площадь...
    • 1 эт.
    • 52 м²
    • 2 сот.
    4 700 000 Р
    Агент
    +7 (918) Показать номер
    Посмотреть контакты
    Дом в Волгоградская область, Волгоград ул. Полухина, 88 (54 м) - Фото 1
    Дом в Волгоградская область, Волгоград ул. Полухина, 88 (54 м) - Фото 2
    1 этаж, общая площадь 53м², участок 4 сотки

    Отличный ухоженный дом, площадью 53.9м2 на участке 4.7 соток, в Советском районе. Дом 1-этажный, наполовину деревянный, обшит сайдингом, наполовину пристройка кирпичная. В доме 5 комнат и кухня, санузел. Вода централизованная, отопление с горячей водой...
    • 1 эт.
    • 53 м²
    • 4 сот.
    4 600 000 Р
    Агент
    +7 (939) Показать номер
    Посмотреть контакты

    Не нашли подходящего объявления?

    Оставьте заявку, и наши риэлторы подберут купить дом в районе Калача-на-Дону

    (0)