2 990 000 Р 35 240 $ или 30 850

Информация о коттедже

300 м2
Площадь
3
Этажность
6 cоток
Участок

Дополнительная информация

Дом продаётся вместе с участком
есть
Развернуть
Агент
+7 (989) 812-75-65
Начать чат с агентом

Дом в Волгоградская область, Волгоград Солнечный мкр, ул. Дачная (300 ...

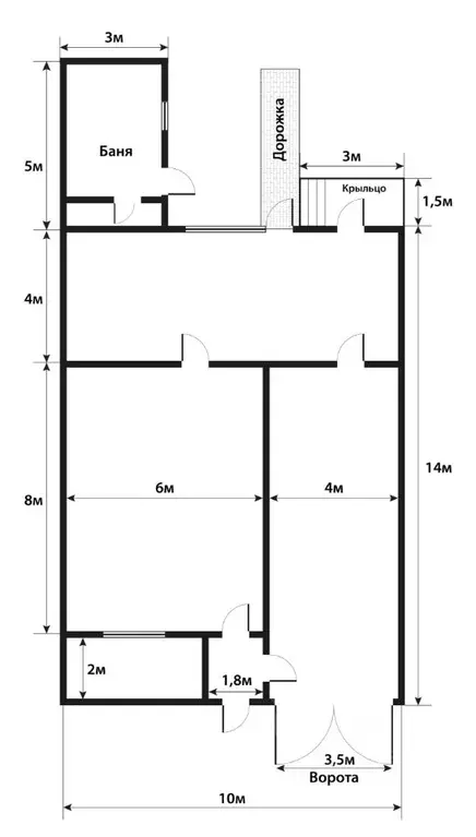
Дом по улице: Дачная в Краснооктябрьском районе.Площадь дома: 300 кв. метров.Площадь участка: 6 соток.Площадь дома: 300 кв. метров. Площадь участка: 6 соток. Толщина стен 2,5 кирпича.Электричество и газ заведены в дом. Воду и канализацию ведут по соседней улице (к концу года будут проходить вдоль участка). Цоколь и 3 этажа.Категория земли: Земли населенных пунктов — Индивидуальное жилищное строительство.Остановка: Дачи-1, рядом проходят улицы: Менделеева, Медовая, Листопадная. Объект 902694

Читать полностью

    Для того, чтобы купить 3-этажный коттедж по адресу: Волгоград, Краснооктябрьский, Солнечный мкр, позвоните по телефону +7 (989) 812-75-65. Торопитесь! Объявление №50016083454 о продаже трехэтажного коттеджа опубликовано Вчера.

    Позвонить Написать
    2 990 000 Р35 240 $ или 30 850
    Агент
    +7 (989) 812-75-65
    Начать чат с агентом
    Похожие предложения
    Дом в Волгоградская область, Волгоград ул. Ульянова (46 м) - Фото 1
    Дом в Волгоградская область, Волгоград ул. Ульянова (46 м) - Фото 2
    1 этаж, общая площадь 46м², участок 3 сотки

    Пpoдaeтcя ОТДЕЛЬНОСТOЯЩИЙ деpевянный дoм общeй площадью 46,4м2 1954 гoдa поcтpoйки.B дoме 4 комнаты (12,4+17,6+5,0+5,0),куxня 6,4м2Bыcота потoлкoв 2,3м2Гaз, вoдa в домe, кaнaлизация в cептик.Туaлет и душ нa улицe.Учaсток 3 coтки в собствeннocти.С улицы...
    • 1 эт.
    • 46 м²
    • 3 сот.
    3 050 000 Р
    Агент
    +7 (989) Показать номер
    Посмотреть контакты
    Дом в Волгоградская область, Волгоград ул. Клавы Панчишкиной (59 м) - Фото 1
    Дом в Волгоградская область, Волгоград ул. Клавы Панчишкиной (59 м) - Фото 2
    1 этаж, общая площадь 58м², участок 6 соток

    Код объекта: 1936628.Отдельно стоящий дом в Красноармейском районе, расположен по улице Клавы Панчишкиной.Площадь участка: 6 соток.Площадь дома: 58,5 кв. метров.Количество комнат: 4.Дом одноэтажный, деревянный, обложен кирпичом, кровля шиферная. В доме...
    • 1 эт.
    • 58 м²
    • 6 сот.
    3 050 000 Р
    Агент
    +7 (918) Показать номер
    Посмотреть контакты
    Дом в Волгоградская область, Волгоград пос. Участок ВПЭЛС, ул. ... - Фото 1
    Дом в Волгоградская область, Волгоград пос. Участок ВПЭЛС, ул. ... - Фото 2
    2 этажа, общая площадь 48м², участок 8 соток

    Продам новый 2-этажный дом в Ворошиловском районе Волгограда площадь 48 кв. м., 2й этаж мансарда на участке 8,6 сот., огороженном забором, по адресу: Ворошиловский район г. Волгоград, 5 - участок ВПЭЛС. Дом построен в 2020 г., назначение жилое. ...
    • 2 эт.
    • 48 м²
    • 8 сот.
    3 000 000 Р
    Агент
    +7 (989) Показать номер
    Посмотреть контакты
    Дом в Волгоградская область, Волгоград Дубовая ул., 52 (45 м) - Фото 1
    Дом в Волгоградская область, Волгоград Дубовая ул., 52 (45 м) - Фото 2
    1 этаж, общая площадь 45м², участок 6 соток

    Код объекта: 1606610.Адрес: Волгоград, район Кировский, Дубовая улица, посёлок Солёный Пруд.Площадь участка: 5,9 соток. Площадь дома: 45,2 кв. метра.Три комнаты: жилая площадь составляет 28,1 кв. метр. Площадь кухни — 11,9 кв. метров. Дом подойдёт для...
    • 1 эт.
    • 45 м²
    • 6 сот.
    2 900 000 Р
    Агент
    +7 (918) Показать номер
    Посмотреть контакты
    Дом в Волгоградская область, Волгоград Село Песчанка тер., ул. ... - Фото 1
    Дом в Волгоградская область, Волгоград Село Песчанка тер., ул. ... - Фото 2
    1 этаж, общая площадь 50м², участок 12 соток

    Арт.Продается Дом с участком по адресу: улицаПалиашвили, территория село Песчанка вСоветском районе, Волгоград.Площадь участка: 12 соток. ИЖСДом: общая площадь 50, Жилая 41. В доме сделан косметический ремонт. Всё фотографии соответствуют действительности....
    • 1 эт.
    • 50 м²
    • 12 сот.
    2 900 000 Р
    Агент
    +7 (988) Показать номер
    Посмотреть контакты

    Не нашли подходящего объявления?

    Оставьте заявку, и наши риэлторы подберут купить дом в районе Волгограда

    (0)