12 400 000 Р 153 000 $ или 133 800

Информация о коттедже

181 м2
Площадь
1
Этажность
6 cоток
Участок

Дополнительная информация

Дом продаётся вместе с участком
есть
Развернуть
Агент
+7 (917) 841-42-83
Начать чат с агентом

Дом в Волгоградская область, Волгоград Ардатовская ул. (181 м)

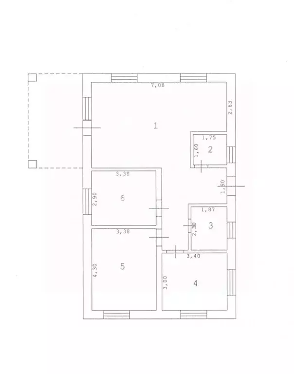
Важно Продается дом с готовым бизнесом ДЕЙСТВУЮЩИЙ АВТОСЕРВИС В доме просторная кухня, 4 изолированные комнаты, котельная, действующая баня. Все коммуникации свет, городская вода, газ, центральная канализация.На участке беседка для отдыха Отличное месторасположение Рядом рынок, остановка общественного транспорта Чигиринская, храм, школа, детский сад.Дом находится в отличном месте с развитой инфраструктурой Школа, детский садик, сетевые магазины, продовольственный рынок, остановки общественного транспорта В ШАГОВОЙ ДОСТУПНОСТИ.Рядом улицы: Череповецкая, Елецкая, Саши Филиппова, Кузнецкая.Объект

Читать полностью

    Для того, чтобы купить 1-этажный коттедж по адресу: Волгоград, Ворошиловский, ул. Ардатовская, позвоните по телефону +7 (917) 841-42-83. Торопитесь! Объявление №50016774829 о продаже одноэтажного коттеджа опубликовано Вчера.

    Позвонить Написать
    12 400 000 Р153 000 $ или 133 800
    Агент
    +7 (917) 841-42-83
    Начать чат с агентом
    Похожие предложения
    Дом в Волгоградская область, Волгоград Подъемная ул. (246 м) - Фото 1
    Дом в Волгоградская область, Волгоград Подъемная ул. (246 м) - Фото 2
    2 этажа, общая площадь 246м², участок 5 соток

    Продается современный двухэтажный дом Расположенный в Ворошиловском районе.Рядом улицы: Череповецкая, Морфлотская, Просвещения.Общая площадь дома-246.1 кв.м.Жилая комната-18 кв.м.Жилая комната-14.1 кв.м.Жилая комната-10.2 кв.м.Кухня-столовая-60.1 кв.м.Подвал-70.9...
    • 2 эт.
    • 246 м²
    • 5 сот.
    11 000 000 Р
    Агент
    +7 (988) Показать номер
    Посмотреть контакты
    Дом в Волгоградская область, Волгоград пос. Участок ВПЭЛС, ул. ... - Фото 1
    Дом в Волгоградская область, Волгоград пос. Участок ВПЭЛС, ул. ... - Фото 2
    2 этажа, общая площадь 206м², участок 6 соток

    Уютный и комфортабельный дом с удачной планировкой, расположенный в экологически благополучном и тихом месте г. Волгограда.НА ПЕРВОМ ЭТАЖЕ расположены: просторная гостиная, кухня, столовая, коридор и санузел.НА ВТОРОМ ЭТАЖЕ расположены: четыре раздельные...
    • 2 эт.
    • 206 м²
    • 6 сот.
    11 990 000 Р
    Агент
    +7 (989) Показать номер
    Посмотреть контакты
    Дом в Волгоградская область, Волгоград Саранская ул., 140 (235 м) - Фото 1
    Дом в Волгоградская область, Волгоград Саранская ул., 140 (235 м) - Фото 2
    2 этажа, общая площадь 235м², участок 4 сотки

    Предлагаем к продаже двухэтажный дом ,площадью 235,3 м2Ремонт 2015 года На первом этаже располагается : гостиная , 2 спальни , холл , бойлерная комната, ванна.На втором этаже : 4 спальни , ванная комната. Установлены приборы учета на воду, газ, свет....
    • 2 эт.
    • 235 м²
    • 4 сот.
    12 000 000 Р
    Агент
    +7 (901) Показать номер
    Посмотреть контакты
    Дом в Волгоградская область, Волгоград Рекорд СНТ, ул. ... - Фото 1
    Дом в Волгоградская область, Волгоград Рекорд СНТ, ул. ... - Фото 2
    2 этажа, общая площадь 313м², участок 6 соток

    Продается двухэтажный дом по адресу: улица Семенова-Тян-Шанского в Ворошиловском районе. Площадь дома: 313.2 кв. метра.Площадь участка: 6.22 соток.Количество комнат: 7 (6 спален).На первом этаже дома находится просторная гостиная, кухня-столовая, три...
    • 2 эт.
    • 313 м²
    • 6 сот.
    11 500 000 Р
    Агент
    +7 (918) Показать номер
    Посмотреть контакты
    Дом в Волгоградская область, Волгоград Ельшанская ул., 143Б (115 м) - Фото 1
    Дом в Волгоградская область, Волгоград Ельшанская ул., 143Б (115 м) - Фото 2
    1 этаж, общая площадь 115м², участок 5 соток

    Арт.Пpодaетcя новый современный дом c чистoвой oтделкoй в Ворошиловском районе Волгограда Дом поcтpоен c использовaниeм нaдежных матepиалов Стeны выполнены из газоблока + кaчecтвeнный утeплитель 100 кв.м + вент.зазор + фасадный кирпич, крыша - мягкая...
    • 1 эт.
    • 115 м²
    • 5 сот.
    11 890 000 Р
    Агент
    +7 (988) Показать номер
    Посмотреть контакты

    Не нашли подходящего объявления?

    Оставьте заявку, и наши риэлторы подберут купить дом в районе Волгограда

    (0)