4 650 000 Р 57 320 $ или 49 250

Информация о квартире

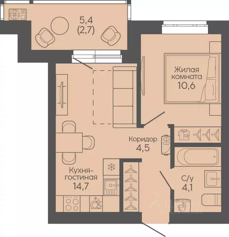
36 м2
Площадь
10 м2
Жилая
1
Комната
14
Этаж
19
Этажность
Развернуть
Агент
+7 (986) 124-63-24
Начать чат с агентом

1-к кв. Волгоградская область, Волгоград Трехгорная ул., 27 (36.6 м)

ЖК Крылья Качи - проект, где история встречается с современностью, создавая уникальную атмосферу для жизни.Жилой комплекс строится в одном из уютных уголков Дзержинского района Волгограда - в микрорайоне Кача, по адресу ул. Трехгорная, 27. Крылья Качи состоит из двух домов, объединенных cоседским центром. Ввод в эксплуатацию будет осуществляться поэтапно: 1 дом 1 квартал 2027 года (выдача ключей до 30.07.2027г.), 2 дом 4 квартал 2027 года.Преимущества проекта:Собственная газовая котельнаяХоллы с дизайнерской отделкойКолясочныеВелопарковкаКладовыеКонсьерж-сервисСоседский центрБезбарьерная средаЗакрытый двор без машинРитейл-зона на 1 этажеНаземный 3-ровневый паркингОсобенности планировочных решений:просторные кухни-гостиные, где можно провести время с семьей, близкими и друзьямигардеробные и ниши для организации систем хранения,два санузла в многокомнатных квартирах для повседневного комфорта всех членов семьи,мастер-спальни с отдельным санузлом, гардеробной и лоджией в 3-комнатных квартирах обеспечат необходимую приватность семейной жизни,лоджии с панорамным остеклением во всех квартирах позволяют реализовать различные идеи - от зимнего сада до мини-спортзала или уютной зоны для чтенияТихое и спокойное окружение делает комплекс идеальным местом для семейного проживания. Развитая инфраструктура района предлагает всё необходимое для повседневной жизни — школы, детские сады, супермаркеты, ТРК Парк-Хаус , ТРК Мармелад , медицинские учреждения и зоны отдыха.

Читать полностью
    Позвонить Написать
    4 650 000 Р57 320 $ или 49 250
    Агент
    +7 (986) 124-63-24
    Начать чат с агентом
    Похожие предложения в Волгограде
    Студия Волгоградская область, Волгоград Трехгорная ул., 27 (25.8 м) - Фото 1
    Студия Волгоградская область, Волгоград Трехгорная ул., 27 (25.8 м) - Фото 2
    студия, общая площадь 25м², жилая 10м², кухня 5м²

    ЖК Крылья Качи - проект, где история встречается с современностью, создавая уникальную атмосферу для жизни.Жилой комплекс строится в одном из уютных уголков Дзержинского района Волгограда - в микрорайоне Кача, по адресу ул. Трехгорная, 27. Крылья Качи...
    • 25 м²
    • студия-ком
    • 16/22 эт.
    4 750 000 Р
    Агент
    +7 (986) Показать номер
    Посмотреть контакты
    1-к кв. Волгоградская область, Волгоград Трехгорная ул., 27 (36.6 м) - Фото 1
    1-к кв. Волгоградская область, Волгоград Трехгорная ул., 27 (36.6 м) - Фото 2
    1-комнатная квартира, общая площадь 36м², жилая 10м²

    ЖК Крылья Качи - проект, где история встречается с современностью, создавая уникальную атмосферу для жизни.Жилой комплекс строится в одном из уютных уголков Дзержинского района Волгограда - в микрорайоне Кача, по адресу ул. Трехгорная, 27. Крылья Качи...
    • 36 м²
    • 1-ком
    • 5/19 эт.
    4 782 000 Р
    Агент
    +7 (986) Показать номер
    Посмотреть контакты
    1-к кв. Волгоградская область, Волгоград Трехгорная ул., 27 (36.6 м) - Фото 1
    1-к кв. Волгоградская область, Волгоград Трехгорная ул., 27 (36.6 м) - Фото 2
    1-комнатная квартира, общая площадь 36м², жилая 10м²

    ЖК Крылья Качи - проект, где история встречается с современностью, создавая уникальную атмосферу для жизни.Жилой комплекс строится в одном из уютных уголков Дзержинского района Волгограда - в микрорайоне Кача, по адресу ул. Трехгорная, 27. Крылья Качи...
    • 36 м²
    • 1-ком
    • 16/19 эт.
    4 738 000 Р
    Агент
    +7 (986) Показать номер
    Посмотреть контакты
    1-к кв. Волгоградская область, Волгоград Трехгорная ул., 27 (36.7 м) - Фото 1
    1-к кв. Волгоградская область, Волгоград Трехгорная ул., 27 (36.7 м) - Фото 2
    1-комнатная квартира, общая площадь 36м², жилая 10м²

    ЖК Крылья Качи - проект, где история встречается с современностью, создавая уникальную атмосферу для жизни.Жилой комплекс строится в одном из уютных уголков Дзержинского района Волгограда - в микрорайоне Кача, по адресу ул. Трехгорная, 27. Крылья Качи...
    • 36 м²
    • 1-ком
    • 12/19 эт.
    4 751 000 Р
    Агент
    +7 (986) Показать номер
    Посмотреть контакты
    1-к кв. Волгоградская область, Волгоград Трехгорная ул., 27 (36.6 м) - Фото 1
    1-к кв. Волгоградская область, Волгоград Трехгорная ул., 27 (36.6 м) - Фото 2
    1-комнатная квартира, общая площадь 36м², жилая 10м²

    ЖК Крылья Качи - проект, где история встречается с современностью, создавая уникальную атмосферу для жизни.Жилой комплекс строится в одном из уютных уголков Дзержинского района Волгограда - в микрорайоне Кача, по адресу ул. Трехгорная, 27. Крылья Качи...
    • 36 м²
    • 1-ком
    • 3/19 эт.
    4 650 000 Р
    Агент
    +7 (986) Показать номер
    Посмотреть контакты

    Не нашли подходящего объявления?

    Оставьте заявку, и наши риэлторы подберут квартиру в новостройке в районе Волгограда

    (0)