3 900 000 Р 47 210 $ или 40 260

Информация о квартире

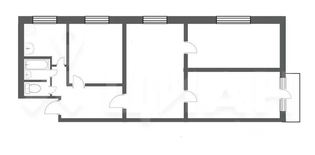
62 м2
Площадь
47 м2
Жилая
7 м2
Кухня
4
Комнаты
2
Этаж
5
Этажность

Дополнительная информация

Тип дома
кирпичный
Развернуть
Агент
Центр недвижимости Живем Дома (Живем Дома)
+7 (989) 437-12-98
Начать чат с агентом

4-к кв. Волгоградская область, Волгоград ул. 51-й Гвардейской Дивизии, ...

4-к квартира по адресу: 51 Гвардейской Дивизии ул, д. 25 в Дзержинском районе;Брежневская планировка: общая 62.50 / жилая 47.00 / кухня 7.00Комнаты: 9 + 10 + 11 +17 метровПластиковые окна. На полу линолеум. Раздельный санузел. Есть застекленный балконКвартира разносторонняя, окна выходят во двор и на улицу.Хорошее место, вся инфраструктура в пешей доступности (школа 101, детсад, спортивная школа, детская поликлиника, магазины, остановки транспорта).Условия продажи: 1 собственник, подходит под ипотеку.Остановка: 18 поликлиника, рядом проходят улицы Республиканская, Савкина, КраснополянскаяОбъект 860988

Читать полностью

    Для того, чтобы купить четырехкомнатную квартиру по адресу: Волгоград, Дзержинский, ул. 51-й Гвардейской Дивизии, 25, позвоните по телефону +7 (989) 437-12-98. Торопитесь! Объявление №30090310787 о продаже четырехкомнатной квартиры опубликовано 28 сентября 2025.

    Позвонить Написать
    3 900 000 Р47 210 $ или 40 260
    Агент
    Центр недвижимости Живем Дома (Живем Дома)
    +7 (989) 437-12-98
    Начать чат с агентом
    Похожие предложения
    1-к кв. Волгоградская область, Волгоград ул. имени Хорошева, 12А (35.3 ... - Фото 1
    1-к кв. Волгоградская область, Волгоград ул. имени Хорошева, 12А (35.3 ... - Фото 2
    1-комнатная квартира, общая площадь 35м², жилая 19м², кухня 9м²

    Продаю 1комнатную квартиру в современном кирпичном доме, по адресу Волгоград, ул. Хорошева, 12 а вДзержинском районе. на 1 этаже 12 этажного дома, с хорошим ремонтом, с/у совмещенный отделан плиткой. Квартира уютная и не угловая. Натяжной потолок....
    • 35 м²
    • 1-ком
    • 1/12 эт.
    • кирпичный
    3 890 000 Р
    Агент
    +7 (989) Показать номер
    Посмотреть контакты
    2-к кв. Волгоградская область, Волгоград ул. 51-й Гвардейской Дивизии, ... - Фото 1
    2-к кв. Волгоградская область, Волгоград ул. 51-й Гвардейской Дивизии, ... - Фото 2
    2-комнатная квартира, общая площадь 31м², жилая 19м², кухня 6м²

    2-к квартира по адресу: 51 Гвардейской Дивизии ул, д. 3 в Дзержинском районе;Хрущевская планировка: общая 31.10 / жилая 19.00 / кухня 6.00Раздельные комнаты: 10.0 + 9.0 метровКвартира в хорошем состоянии. Квартира после капитального ремонта. Натяжные...
    • 31 м²
    • 2-ком
    • 2/5 эт.
    • панельный
    3 800 000 Р
    Агент
    +7 (989) Показать номер
    Посмотреть контакты
    Студия Волгоградская область, Волгоград ул. Полоненко, 4А (30.0 м) - Фото 1
    Студия Волгоградская область, Волгоград ул. Полоненко, 4А (30.0 м) - Фото 2
    студия, общая площадь 30м², жилая 14м², кухня 6м²

    Хотите купить квартиру в Дзержинском районе, в новом Жилом комплексе, в сданном доме, по цене ниже застройщика? ЖК Художники — настоящий шедевр современного жилья: природа, стиль и комфорт сплетены воедино. Входная группа сразу покоряет сердца —...
    • 30 м²
    • студия-ком
    • 13/19 эт.
    • монолит
    3 990 000 Р
    Агент
    +7 (988) Показать номер
    Посмотреть контакты
    2-к кв. Волгоградская область, Волгоград Новодвинская ул., 42 (41.0 м) - Фото 1
    2-к кв. Волгоградская область, Волгоград Новодвинская ул., 42 (41.0 м) - Фото 2
    2-комнатная квартира, общая площадь 41м², жилая 25м², кухня 5м²

    2-к квартира по адресу: Новодвинская ул, д. 42 в Дзержинском районе;Хрущевская планировка: общая 41.00 / жилая 25.90 / кухня 5.80Раздельные комнаты: 17.7 + 8.2 метровКвартира в хорошем состоянии. Пластиковые окна. На полу линолеум.При продаже остается:...
    • 41 м²
    • 2-ком
    • 1/5 эт.
    • кирпичный
    3 800 000 Р
    Агент
    +7 (989) Показать номер
    Посмотреть контакты
    2-к кв. Волгоградская область, Волгоград ул. Космонавтов, 45а (50.1 м) - Фото 1
    2-к кв. Волгоградская область, Волгоград ул. Космонавтов, 45а (50.1 м) - Фото 2
    2-комнатная квартира, общая площадь 50м², жилая 28м², кухня 8м²

    Описание: Продаётся двухкомнатная квартира в Дзержинском районе, микрорайон Семь Ветров , на улице Космонавтов. Общая площадь 50,1 кв.м, жилая 28 кв.м, кухня 8,6 кв.м. Квартира расположена на 1 этаже 9-этажного дома улучшенной планировки. Состояние...
    • 50 м²
    • 2-ком
    • 1/9 эт.
    3 950 000 Р
    Агент
    +7 (989) Показать номер
    Посмотреть контакты

    Не нашли подходящего объявления?

    Оставьте заявку, и наши риэлторы подберут квартиру в районе Волгограда

    (0)