6 998 000 Р 86 390 $ или 73 400

Информация о квартире

51 м2
Площадь
28 м2
Жилая
10 м2
Кухня
2
Комнаты
3
Этаж
16
Этажность
Развернуть
Агент
Центр недвижимости Живем Дома (Живем Дома)
+7 (989) 437-12-98
Начать чат с агентом

2-к кв. Волгоградская область, Волгоград пос. Ангарский, ул. ...

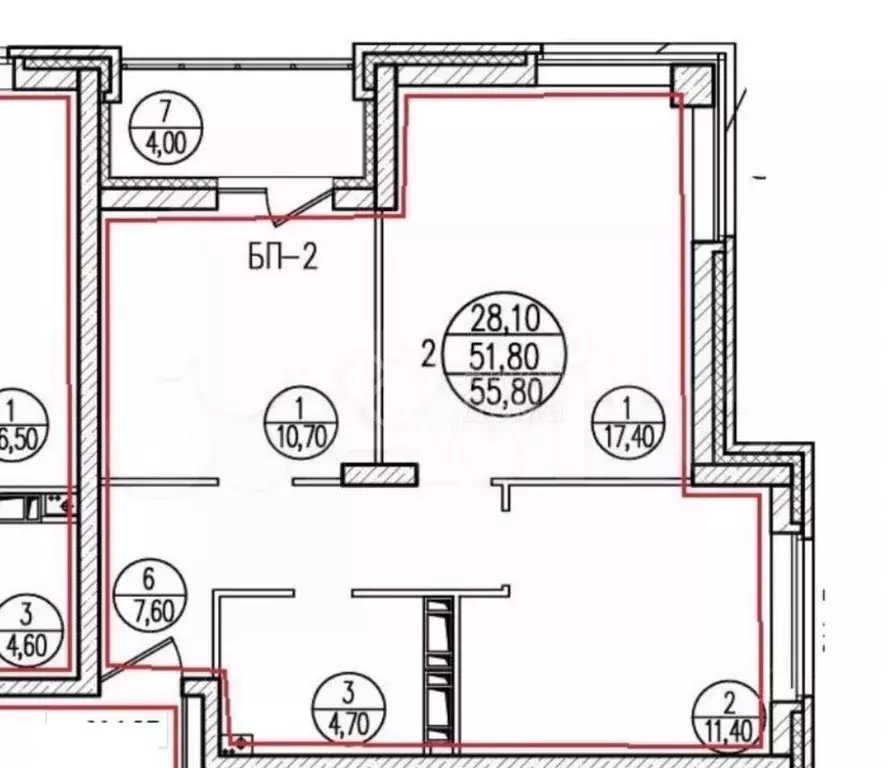
2-к квартира по адресу: Бурейская ул, д. 2Б в Дзержинском районе;Планировка: общая 51.80 / жилая 28.80 / кухня 10.70Раздельные комнаты: 17.4 + 11.4 метровПластиковые окна. Есть застекленный пластиком балконКвартира разносторонняя и не угловая, окна выходят на улицу.Условия продажи: 1 собственник, чистая продажа, подходит под ипотеку.Остановка: Областная Больница , рядом проходят улицы Рокоссовского, Ангарская, ЧереповецкаяОбъект 915800

Читать полностью

    Для того, чтобы купить двухкомнатную квартиру по адресу: Волгоград, ул. Бурейская, 2Б, позвоните по телефону +7 (989) 437-12-98. Торопитесь! Объявление №30090358919 о продаже двухкомнатной квартиры опубликовано 22 сентября 2025.

    Позвонить Написать
    6 998 000 Р86 390 $ или 73 400
    Агент
    Центр недвижимости Живем Дома (Живем Дома)
    +7 (989) 437-12-98
    Начать чат с агентом
    Похожие предложения
    2-к кв. Волгоградская область, Волгоград пос. Ангарский, ул. ... - Фото 1
    2-к кв. Волгоградская область, Волгоград пос. Ангарский, ул. ... - Фото 2
    2-комнатная квартира, общая площадь 52м², жилая 27м², кухня 10м²

    2-к квартира по адресу: Бурейская ул, д. 2б в Дзержинском районе;Планировка: общая 52.10 / жилая 27.30 / кухня 10.80Раздельные комнаты: 14.1 + 13.2 метровПластиковые окна. На полу линолеум. Раздельный санузел. Есть застекленная пластиком лоджияКвартира...
    • 52 м²
    • 2-ком
    • 11/17 эт.
    • кирпичный
    6 990 000 Р
    Агент
    +7 (989) Показать номер
    Посмотреть контакты
    1-к кв. Волгоградская область, Волгоград Козловская ул., 37 (58.5 м) - Фото 1
    1-к кв. Волгоградская область, Волгоград Козловская ул., 37 (58.5 м) - Фото 2
    1-комнатная квартира, общая площадь 58м², жилая 26м², кухня 12м²

    1-к квартира по адресу: Козловская ул, д. 37 в Ворошиловском районе;Улучшенная планировка: общая 58.50 / жилая 26.40 / кухня 12.80Квартира в очень хорошем состоянии. Натяжные потолки. Пластиковые окна. На полу линолеум. Установлены современные межкомнатные...
    • 58 м²
    • 1-ком
    • 8/16 эт.
    • кирпичный
    6 990 000 Р
    Агент
    +7 (989) Показать номер
    Посмотреть контакты
    2-к кв. Волгоградская область, Волгоград Депутатская ул., 11а (79.7 м) - Фото 1
    2-к кв. Волгоградская область, Волгоград Депутатская ул., 11а (79.7 м) - Фото 2
    2-комнатная квартира, общая площадь 79м², жилая 46м², кухня 11м²

    Код объекта: 1549148. Продаётся просторная двухкомнатная квартира по адресу: улица Депутатская, 11А в Краснооктябрьском районе.Общая площадь — 79,7 м, жилая — 46,1 м, кухня — 11,3 м. Высота потолков — 2,6 метра. Кирпичный дом 2001 года постройки с железобетонными...
    • 79 м²
    • 2-ком
    • 8/11 эт.
    • кирпичный
    7 000 000 Р
    Агент
    +7 (989) Показать номер
    Посмотреть контакты
    2-к кв. Волгоградская область, Волгоград ул. Никитина, 125А (62.7 м) - Фото 1
    2-к кв. Волгоградская область, Волгоград ул. Никитина, 125А (62.7 м) - Фото 2
    2-комнатная квартира, общая площадь 62м², жилая 36м², кухня 11м²

    2-к квартира по адресу: им. Никитина ул, д. 125а в Кировском районе;Планировка: общая 62.70 / жилая 36.40 / кухня 11.10Раздельные комнаты: 19.8 + 16.6 метровКвартира в отличном состоянии. Натяжные потолки. Пластиковые окна. На полу ламинат. Есть застекленная...
    • 62 м²
    • 2-ком
    • 9/9 эт.
    • кирпичный
    6 999 999 Р
    Агент
    +7 (901) Показать номер
    Посмотреть контакты
    2-комнатная квартира: Волгоград, улица Добрушина, 10 (55.1 м) - Фото 1
    2-комнатная квартира: Волгоград, улица Добрушина, 10 (55.1 м) - Фото 2
    2-комнатная квартира, общая площадь 55м², жилая 30м², кухня 12м²

    2-к квартира по адресу: им. гвардии полковника Добрушина ул, д. 10 в Краснооктябрьском районе;Планировка: общая 54.20 / жилая 30.50 / кухня 12.00Раздельные комнаты: 14.3 + 16.2 метровКвартира в отличном состоянии.Натяжные потолки. Пластиковые окна. На...
    • 55 м²
    • 2-ком
    • 1/3 эт.
    6 900 000 Р
    Агент
    +7 (988) Показать номер
    Посмотреть контакты

    Не нашли подходящего объявления?

    Оставьте заявку, и наши риэлторы подберут квартиру в районе Волгограда

    (0)