2 800 000 Р 35 450 $ или 30 430

Информация о квартире

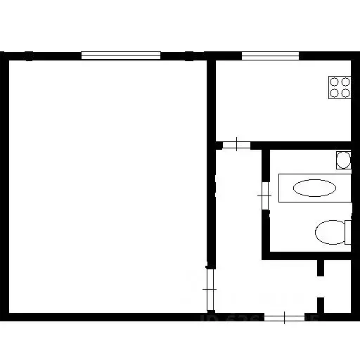
30 м2
Площадь
18 м2
Жилая
6 м2
Кухня
1
Комната
1
Этаж
5
Этажность

Дополнительная информация

Тип дома
кирпичный
Развернуть
Агент
+7 (989) 437-13-93
Начать чат с агентом

1-к кв. Волгоградская область, Волгоград Запорожская ул., 3 (30.9 м)

1-к квартира по адресу: Запорожская ул, д. 3 в Советском районе;Брежневская планировка: общая 30.90 / жилая 18.50 / кухня 6.00На полу линолеум.Квартира не угловая, окна выходят на улицу.В 2-х минутах ходьбы остановка общественного транспорта, детская поликлиника 31, детский садик, стоматология, магазины, институт, университет.Условия продажи: 1 собственник, подходит под ипотеку.Остановка: СХИ, Волгоградский Кооперативный институт, рядом проходят улицы Университетский проспект, Чебышева, Линейная, МежеваяОбъект 924810

Читать полностью

    Для того, чтобы купить однокомнатную квартиру по адресу: Волгоград, Советский, ул. Запорожская, 3, позвоните по телефону +7 (989) 437-13-93. Торопитесь! Объявление №30091027760 о продаже однокомнатной квартиры опубликовано 2 дня назад.

    Позвонить Написать
    2 800 000 Р35 450 $ или 30 430
    Агент
    +7 (989) 437-13-93
    Начать чат с агентом
    Похожие предложения
    1-к кв. Волгоградская область, Волгоград Запорожская ул., 3 (30.0 м) - Фото 1
    1-к кв. Волгоградская область, Волгоград Запорожская ул., 3 (30.0 м) - Фото 2
    1-комнатная квартира, общая площадь 30м², жилая 17м², кухня 6м²

    1-к квартира по адресу: Запорожская ул, д. 3 в Советском районе;Брежневская планировка: общая 30.00 / жилая 17.00 / кухня 6.50Есть балконКвартира не угловая, окна выходят во двор соседнего домаУсловия продажи: 1 собственник, чистая продажа, подходит под...
    • 30 м²
    • 1-ком
    • 3/5 эт.
    • кирпичный
    2 800 000 Р
    Агент
    +7 (989) Показать номер
    Посмотреть контакты
    1-к кв. Волгоградская область, Волгоград ул. Шумского, 18 (25.5 м) - Фото 1
    1-к кв. Волгоградская область, Волгоград ул. Шумского, 18 (25.5 м) - Фото 2
    1-комнатная квартира, общая площадь 25м², жилая 12м², кухня 7м²

    Продается уютная 1-комнатная квартира в современном доме, расположенном в перспективном и быстро развивающемся микрорайоне Родниковая Долина .Это прекрасная возможность создать идеальное пространство для жизни с нуля, так как квартира предлагается в...
    • 25 м²
    • 1-ком
    • 3/3 эт.
    2 750 000 Р
    Агент
    +7 (988) Показать номер
    Посмотреть контакты
    1-к кв. Волгоградская область, Волгоград ул. Зевина, 30 (34.7 м) - Фото 1
    1-к кв. Волгоградская область, Волгоград ул. Зевина, 30 (34.7 м) - Фото 2
    1-комнатная квартира, общая площадь 34м², жилая 20м², кухня 6м²

    1-к квартира по адресу: им. Зевина ул, д. 30 в Советском районе;Планировка: общая 34.70 / жилая 20.70 / кухня 6.10Квартира в хорошем состоянии. Пластиковые окна. Есть балконКвартира не угловая, окна выходят на частный секторУсловия продажи: 1 собственник,...
    • 34 м²
    • 1-ком
    • 2/4 эт.
    • блочный
    2 750 000 Р
    Агент
    +7 (989) Показать номер
    Посмотреть контакты
    1-к кв. Волгоградская область, Волгоград ул. Добрушина, 20 (21.0 м) - Фото 1
    1-к кв. Волгоградская область, Волгоград ул. Добрушина, 20 (21.0 м) - Фото 2
    1-комнатная квартира, общая площадь 21м², жилая 9м², кухня 6м²

    Продается 1 - комнатная квартира на Добрушина д.20, расположенная в тихом месте Советского района, вдали от дорог. В шаговой доступности улицы: Грибанова, Солнечникова.Застекленный балкон. Санузел совмещен.Квартира не угловая.Квартира в хорошем состоянии:...
    • 21 м²
    • 1-ком
    • 1/3 эт.
    2 800 000 Р
    Агент
    +7 (988) Показать номер
    Посмотреть контакты
    1-к кв. Волгоградская область, Волгоград ул. Грибанова, 3А (24.6 м) - Фото 1
    1-к кв. Волгоградская область, Волгоград ул. Грибанова, 3А (24.6 м) - Фото 2
    1-комнатная квартира, общая площадь 24м², жилая 9м², кухня 5м²

    Продается квартира в новом высотном доме Долины . Ключи в день сделки О квартире: • компактная и функциональная: помещается всё, что может понадобится- ванная комната, гардероб при входе и кухня гостиная с широким и удобным диваном для отдыха. • квартира...
    • 24 м²
    • 1-ком
    • 13/22 эт.
    2 850 000 Р
    Агент
    +7 (989) Показать номер
    Посмотреть контакты

    Не нашли подходящего объявления?

    Оставьте заявку, и наши риэлторы подберут квартиру в районе Волгограда

    (0)