5 790 000 Р 73 270 $ или 63 930

Информация о квартире

50 м2
Площадь
8 м2
Кухня
2
Комнаты
8
Этаж
9
Этажность

Дополнительная информация

Тип дома
панельный
Развернуть
Агент
+7 (923) 890-28-77
Начать чат с агентом

2-к кв. Волгоградская область, Волгоград Нарвская ул., 2 (50.0 м)

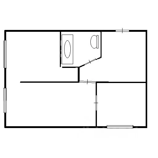
Новый объект Продается 2-комнатная квартира 50 м с изолированными комнатами, г. Волгоград, ул. Нарвская 2 , 8/9 Планировка: Классическая схема с изолированными комнатами, санузлом и большой кухней 8 м. Спальня увеличена за счет демонтированного балконного блока (возможность восстановления). Состояние: Выполнен евроремонт (не новый). Установлены пластиковые окна. Квартира готова к проживанию. Расположение: 8-й этаж 9-этажного дома. Развитая инфраструктура: остановка ул. Хорошева, школы, детские сады, МФЦ, Сбербанк, парк. Удобная транспортная развязка.Цена: 5

Читать полностью

    Для того, чтобы купить двухкомнатную квартиру по адресу: Волгоград, Дзержинский, ул. Нарвская, 2, позвоните по телефону +7 (923) 890-28-77. Торопитесь! Объявление №30091938797 о продаже двухкомнатной квартиры опубликовано 21 ноября 2025.

    Позвонить Написать
    5 790 000 Р73 270 $ или 63 930
    Агент
    +7 (923) 890-28-77
    Начать чат с агентом
    Похожие предложения
    1-к кв. Волгоградская область, Волгоград ул. Расула Гамзатова, 7 (36.9 ... - Фото 1
    1-к кв. Волгоградская область, Волгоград ул. Расула Гамзатова, 7 (36.9 ... - Фото 2
    1-комнатная квартира, общая площадь 36м², кухня 15м²

    Новая 1-комнатная квартира(ЕВРОДВУШКА)- С РЕМОНТОМ И МЕБЕЛЬЮ И ТЕХНИКОЙ на 8-ом этаже 10-этажного дома в ЖК РЕСПУБЛИКА , в Дзержинском районе, рядом с ТРК МАРМЕЛАД . Общая площадь -40,3м2(вмести с балконом). По документам площадь -36.9м2 + застеклённый...
    • 36 м²
    • 1-ком
    • 8/9 эт.
    5 800 000 Р
    Агент
    +7 (939) Показать номер
    Посмотреть контакты
    3-к кв. Волгоградская область, Волгоград просп. Маршала Жукова, 131 ... - Фото 1
    3-к кв. Волгоградская область, Волгоград просп. Маршала Жукова, 131 ... - Фото 2
    3-комнатная квартира, общая площадь 58м², жилая 34м², кухня 7м²

    Продадим или обменяем светлую трехкомнатную, разностороннюю, КВАРТИРУ в кирпичном доме, на проспекте Жукова, 131.Находится в динамично развивающемся Дзержинском районе.Рядом улицы: Хорошева, Карла Либкнехта, Качинцев, Рионская.Общая площадь 58,9 кв.м.Жилая...
    • 58 м²
    • 3-ком
    • 3/5 эт.
    5 800 000 Р
    Агент
    +7 (918) Показать номер
    Посмотреть контакты
    2-к кв. Волгоградская область, Волгоград ул. 8-й Воздушной Армии, 34 ... - Фото 1
    2-к кв. Волгоградская область, Волгоград ул. 8-й Воздушной Армии, 34 ... - Фото 2
    2-комнатная квартира, общая площадь 53м², жилая 29м², кухня 10м²

    Код объекта: 1915185.Продаётся двухкомнатная квартира на улице 8-й Воздушной Армии, 34 в районе Семь Ветров. Квартира расположена на первом этаже девятиэтажного панельного дома.Общая площадь 53,6 кв. м. Жилая площадь составляет 29,6 кв. м, а площадь кухни...
    • 53 м²
    • 2-ком
    • 1/9 эт.
    • панельный
    5 800 000 Р
    Агент
    +7 (918) Показать номер
    Посмотреть контакты
    1-к кв. Волгоградская область, Волгоград ул. Полоненко, 4А (47.8 м) - Фото 1
    1-к кв. Волгоградская область, Волгоград ул. Полоненко, 4А (47.8 м) - Фото 2
    1-комнатная квартира, общая площадь 47м², жилая 20м², кухня 19м²

    Код объекта: 1801417. Уникальное предложение в Волгограде: просторная и светлая квартира на улице Полоненко, 4А. Этот объект идеальный выбор для тех, кто ищет комфорт и качество. Кирпично-монолитный дом 2025 года постройки гарантирует надёжность и долговечность.Квартира...
    • 47 м²
    • 1-ком
    • 8/19 эт.
    5 800 000 Р
    Агент
    +7 (918) Показать номер
    Посмотреть контакты
    3-к кв. Волгоградская область, Волгоград Ангарская ул., 116 (57.7 м) - Фото 1
    3-к кв. Волгоградская область, Волгоград Ангарская ул., 116 (57.7 м) - Фото 2
    3-комнатная квартира, общая площадь 57м², жилая 33м², кухня 6м²

    3-к квартира по адресу: Ангарская ул, д. 116 в Дзержинском районе;Брежневская планировка: общая 57.70 / жилая 33.10 / кухня 6.30Раздельные комнаты: 10.6 + 12.4 + 12.1 метровКвартира в хорошем состоянии. Натяжные потолки с точечным освещением. Пластиковые...
    • 57 м²
    • 3-ком
    • 9/9 эт.
    • кирпичный
    5 750 000 Р
    Агент
    +7 (989) Показать номер
    Посмотреть контакты

    Не нашли подходящего объявления?

    Оставьте заявку, и наши риэлторы подберут квартиру в районе Волгограда

    (0)