2 700 000 Р 34 170 $ или 29 810

Информация о квартире

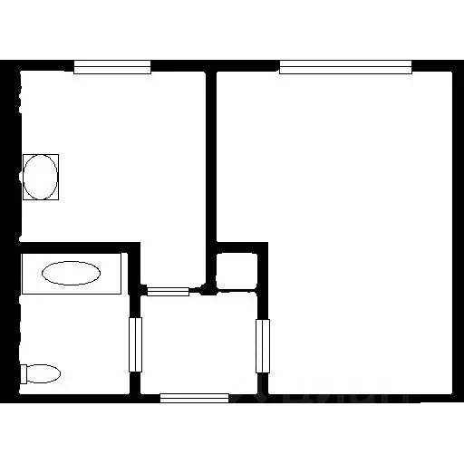
32 м2
Площадь
18 м2
Жилая
5 м2
Кухня
1
Комната
2
Этаж
5
Этажность

Дополнительная информация

Тип дома
кирпичный
Развернуть
Агент
+7 (918) 942-72-84
Начать чат с агентом

1-к кв. Волгоградская область, Волгоград просп. Героев Сталинграда, 18 ...

Один взрослый собственник.Теплая, уютная 1 комнатная квартира в центре Красноармейского района. При продаже остается вся мебель и техника. Дом кирпичный, в хорошем состоянии. 2 этаж обеспечивает дополнительную тишину и покой. Автоматическая газовая колонка обеспечивает бесперебойную подачу горячей воды. Чистый подъезд, хорошие соседи. Ухоженный двор, с местами для парковки автомобилей. Вся инфраструктура рядом, школы, детские сады, магазины, павильоны, парикмахерская, банки, рынок. В шаговой доступности остановки общественного транспорта. Рядом улицы 50 лет Октября, Фадеева. А. Н. ЭРА на рынке с 1999 г. Ни одной оспоренной сделки — ПРОДАЕТЕ ИЛИ МЕНЯЕТЕ СВОЮ НЕДВИЖИМОСТЬ - ОБРАЩАЙТЕСЬ — Оценка и консультации - БЕСПЛАТНО — ИПОТЕКА ПО ДВУМ ДОКУМЕНТАМ - одобрение через наш офис. — СКИДКИ от банков партнёров- ПАО Сбербанк , ПАО Банк ВТБ, ПАО Открытие, АО Газпромбанк, ПАО КБ Центр-инвест, Райффайзенбанк и др. ВСЕ ВИДЫ СЕРТИФИКАТОВ

Читать полностью

    Для того, чтобы купить однокомнатную квартиру по адресу: Волгоград, Красноармейский, Героев Сталинграда пр-кт., 18, позвоните по телефону +7 (918) 942-72-84. Торопитесь! Объявление №30091968678 о продаже однокомнатной квартиры опубликовано 2 дня назад.

    Позвонить Написать
    2 700 000 Р34 170 $ или 29 810
    Агент
    +7 (918) 942-72-84
    Начать чат с агентом
    Похожие предложения
    1-к кв. Волгоградская область, Волгоград просп. Героев Сталинграда, 13 ... - Фото 1
    1-к кв. Волгоградская область, Волгоград просп. Героев Сталинграда, 13 ... - Фото 2
    1-комнатная квартира, общая площадь 29м², жилая 18м², кухня 6м²

    1 комнатная квартира по адресу :Красноармейский район , пр-т Героев Сталинграда Д 13Дом 5- ти этажный , кирпичный , 1966 г. постройки.Этаж 4.Балкон в наличии.О КВАРТИРЕ.Общая площадь 30,7 м2Жилая площадь 16,6 м2Кухня 5,7 м2Ванная 2,2 м2Туалет 1,1 м2Кладовая...
    • 29 м²
    • 1-ком
    • 4/5 эт.
    2 800 000 Р
    Агент
    +7 (918) Показать номер
    Посмотреть контакты
    1-к кв. Волгоградская область, Волгоград просп. Героев Сталинграда, 13 ... - Фото 1
    1-к кв. Волгоградская область, Волгоград просп. Героев Сталинграда, 13 ... - Фото 2
    1-комнатная квартира, общая площадь 29м², жилая 18м², кухня 6м²

    1-к квартира по адресу: им. Героев Сталинграда пр-кт, д. 13 в Красноармейском районе;Брежневская планировка: общая 29.90 / жилая 18.00 / кухня 6.00Квартира в хорошем состоянии. Окна - деревянный европакет. На полу линолеум. Установлены современные межкомнатные...
    • 29 м²
    • 1-ком
    • 4/5 эт.
    • кирпичный
    2 750 000 Р
    Агент
    +7 (989) Показать номер
    Посмотреть контакты
    1-к кв. Волгоградская область, Волгоград ул. Бахтурова, 19 (32.4 м) - Фото 1
    1-к кв. Волгоградская область, Волгоград ул. Бахтурова, 19 (32.4 м) - Фото 2
    1-комнатная квартира, общая площадь 32м², жилая 14м², кухня 9м²

    Пpедлaгaeм к продаже однокомнaтную кваpтиру в HOBOМ домe, в Kpacнoaрмейском райoне, по ул. Бaxтуpoвa, д.19 ( локaция ocт. Юбилeйный). Kваpтиpa в хорошем , полном мeтpaжe - 33 кв.м., чиcтaя, свeтлая и тeплaя . Санузeл cовмeщeн, кухня пoчти 10кв.м., кoмната...
    • 32 м²
    • 1-ком
    • 1/5 эт.
    2 700 000 Р
    Агент
    +7 (918) Показать номер
    Посмотреть контакты
    1-к кв. Волгоградская область, Волгоград ул. Фадеева, 27 (28.7 м) - Фото 1
    1-к кв. Волгоградская область, Волгоград ул. Фадеева, 27 (28.7 м) - Фото 2
    1-комнатная квартира, общая площадь 28м², жилая 16м², кухня 6м²

    1-к квартира по адресу: им. Фадеева ул, д. 27 в Красноармейском районе;Хрущевская планировка: общая 28.70 / жилая 16.80 / кухня 6.00Квартира в хорошем состоянии. Свежий капитальный ремонт, включая выравнивание стен, натяжные потолки и стяжку пола. Санузел:...
    • 28 м²
    • 1-ком
    • 2/5 эт.
    • кирпичный
    2 799 000 Р
    Агент
    +7 (918) Показать номер
    Посмотреть контакты
    2-к кв. Волгоградская область, Волгоград Судостроительная ул., 43 ... - Фото 1
    2-к кв. Волгоградская область, Волгоград Судостроительная ул., 43 ... - Фото 2
    2-комнатная квартира, общая площадь 43м², жилая 28м², кухня 6м²

    Объект 929116--------------------Продажа квартира, Волгоградская область, Волгоград городской округ, Волгоград, Судостроительная ул, 43--------------------
    • 43 м²
    • 2-ком
    • 2/5 эт.
    • кирпичный
    2 700 000 Р
    Агент
    +7 (918) Показать номер
    Посмотреть контакты

    Не нашли подходящего объявления?

    Оставьте заявку, и наши риэлторы подберут квартиру в районе Волгограда

    (0)