4 370 000 Р 57 090 $ или 48 060

Информация о квартире

43 м2
Площадь
27 м2
Жилая
5 м2
Кухня
2
Комнаты
5
Этаж
5
Этажность

Дополнительная информация

Тип дома
панельный
Развернуть
Агент
+7 (918) 620-14-39
Начать чат с агентом

2-к кв. Волгоградская область, Волгоград бул. Энгельса, 3 (43.4 м)

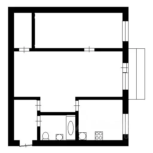
Код объекта: 1866914.Уникальное предложение на рынке недвижимости Волгограда: продаётся светлая и просторная двухкомнатная квартира в центре района, по адресу бульвар Энгельса, 3.Квартира расположена на последнем этаже пятиэтажного дома. Общая площадь составляет 43,4 кв. м, из которых 27,4 кв. м — жилая площадь. Две комнаты изолированы, их площадь — 17 и 10,4 кв. м. Высота потолков — 2,5 м. Кухня площадью 5,9 кв. м.Квартира после евроремонта, в хорошем состоянии, что позволит вам сразу заселиться и наслаждаться комфортом своего жилья. Есть балкон, где можно создать уютную зону для отдыха.Наземный паркинг обеспечит удобное место для вашего автомобиля. Окна выходят на улицу, что позволяет наслаждаться видами и свежим воздухом.В 5-10 минутах ходьбы находятся магазины, кафе, почта, загс, поликлиника, школы, садик, аллея бульвара, затон, химик, администрация, салоны красоты, спортзал, остановки общественного транспорта и электрички. Условия продажи: 1 собственник.Позвоните нам прямо сейчас, чтобы узнать больше и записаться на просмотр.Мы гарантируем безопасную сделку и юридическую поддержку нашим клиентам. Поможем одобрить ипотеку с сниженной ставкой.Улицы рядом: Остравская, Гражданская, проспект Героев Сталинграда.

Читать полностью

    Для того, чтобы купить двухкомнатную квартиру по адресу: Волгоград, Красноармейский, бул. Энгельса, 3, позвоните по телефону +7 (918) 620-14-39. Торопитесь! Объявление №30092070751 о продаже двухкомнатной квартиры опубликовано 14 января 2026.

    Позвонить Написать
    4 370 000 Р57 090 $ или 48 060
    Агент
    +7 (918) 620-14-39
    Начать чат с агентом
    Похожие предложения
    2-к кв. Волгоградская область, Волгоград бул. Энгельса, 3 (43.4 м) - Фото 1
    2-к кв. Волгоградская область, Волгоград бул. Энгельса, 3 (43.4 м) - Фото 2
    2-комнатная квартира, общая площадь 43м², жилая 28м², кухня 6м²

    Успейте КУПИТЬ Двухкомнатная квартира по адресу :Красноармейский район , Бульвар им Энгельса , Д 3Этаж 5.Балкон в наличии.Комнаты раздельные .Рядом проходят улицы :- пр-т Героев Сталинграда- Остравская- ПролетарскаяОст. магазин ПятерочкаОст. Бульвар...
    • 43 м²
    • 2-ком
    • 5/5 эт.
    4 370 000 Р
    Агент
    +7 (918) Показать номер
    Посмотреть контакты
    2-к кв. Волгоградская область, Волгоград просп. Канатчиков, 5 (55.0 м) - Фото 1
    2-к кв. Волгоградская область, Волгоград просп. Канатчиков, 5 (55.0 м) - Фото 2
    2-комнатная квартира, общая площадь 55м², жилая 32м², кухня 8м²

    Код объекта: 1975350.Продаётся двухкомнатная квартира в кирпичном доме по адресу: Волгоград проспект Канатчиков, 5.Жилая площадь составляет 32 квадратных метра, общая — 55 квадратных метров, из них 8 квадратных метров занимает кухня. Две изолированные...
    • 55 м²
    • 2-ком
    • 3/5 эт.
    • кирпичный
    4 300 000 Р
    Агент
    +7 (918) Показать номер
    Посмотреть контакты
    1-к кв. Волгоградская область, Волгоград бул. Энгельса, 10 (42.8 м) - Фото 1
    1-к кв. Волгоградская область, Волгоград бул. Энгельса, 10 (42.8 м) - Фото 2
    1-комнатная квартира, общая площадь 42м², жилая 20м², кухня 8м²

    1-к квартира по адресу: им. Энгельса б-р, д. 10 в Красноармейском районе;Улучшенная планировка: общая 42.80 / жилая 20.80 / кухня 8.90Квартира в хорошем состоянии. Натяжные потолки. Пластиковые окна. На полу ламинат, линолеум. Установлены современные...
    • 42 м²
    • 1-ком
    • 8/9 эт.
    • панельный
    4 300 000 Р
    Агент
    +7 (918) Показать номер
    Посмотреть контакты
    3-к кв. Волгоградская область, Волгоград ул. Копецкого, 20 (60.6 м) - Фото 1
    3-к кв. Волгоградская область, Волгоград ул. Копецкого, 20 (60.6 м) - Фото 2
    3-комнатная квартира, общая площадь 60м², жилая 44м², кухня 5м²

    3-к квартира по адресу: Удмуртская ул, д. 93 в Красноармейском районе;Хрущевская планировка: общая 60.60 / жилая 44.70 / кухня 5.80Раздельные комнаты: 17.3 + 17 + 10.4 метровКвартира в хорошем состоянии. Натяжные потолки. Пластиковые окна. На полу ковролин....
    • 60 м²
    • 3-ком
    • 3/5 эт.
    • кирпичный
    4 350 000 Р
    Агент
    +7 (918) Показать номер
    Посмотреть контакты
    2-к кв. Волгоградская область, Волгоград Изобильная ул., 22 (50.3 м) - Фото 1
    2-к кв. Волгоградская область, Волгоград Изобильная ул., 22 (50.3 м) - Фото 2
    2-комнатная квартира, общая площадь 50м², жилая 28м², кухня 8м²

    Код объекта: 1608111.Продается 2-комнатная квартира в самом центре Красноармейского района, в до канальной части: Изобильная улица, 22.Планировка: общая площадь 50.3 / жилая 28.3 / кухня 8.5 кв. метров.Комнаты: 11.7 + 16.5 кв. метров.Квартира в хорошем...
    • 50 м²
    • 2-ком
    • 8/9 эт.
    • панельный
    4 400 000 Р
    Агент
    +7 (918) Показать номер
    Посмотреть контакты

    Не нашли подходящего объявления?

    Оставьте заявку, и наши риэлторы подберут квартиру в районе Волгограда

    (0)