3 050 000 Р 38 440 $ или 32 820

Информация о квартире

30 м2
Площадь
18 м2
Жилая
6 м2
Кухня
1
Комната
3
Этаж
5
Этажность

Дополнительная информация

Тип дома
кирпичный
Развернуть
Агент
+7 (918) 042-83-79
Начать чат с агентом

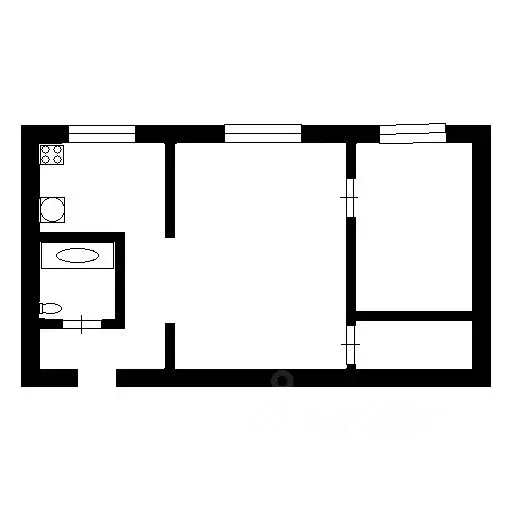
1-к кв. Волгоградская область, Волгоград Логовская ул., 43 (30.8 м)

Продается уютная 1-комнатная квартира в Волгограде, расположенная в Советском районе на Логовской улице, дом 43. Квартира находится на 3 этаже пятиэтажного кирпичного дома (брежневка), что обеспечивает хорошую тепло- и звукоизоляцию.Основные характеристики:• Общая площадь: 30.80 кв.м.• Жилая площадь: 18.00 кв.м.• Площадь кухни: 6.00 кв.м.• Состояние квартиры: хорошее, готова для проживания.Квартира угловая, с окнами, выходящими как во двор, так и на улицу, что обеспечивает прекрасный вид и достаточное количество естественного света. В доме имеется центральное отопление и газ, а также железная дверь для дополнительной безопасности.На территории двора предусмотрена открытая парковка, детская и спортивная площадки, что делает данное место идеальным для семей с детьми. Квартира подходит для приобретения в ипотеку, также возможна оплата с использованием материнского капитала. Не упустите возможность стать владельцем этой комфортной квартиры

Читать полностью

    Для того, чтобы купить однокомнатную квартиру по адресу: Волгоград, Советский, ул. Логовская, 43, позвоните по телефону +7 (918) 042-83-79. Торопитесь! Объявление №30092335883 о продаже однокомнатной квартиры опубликовано 09 декабря 2025.

    Позвонить Написать
    3 050 000 Р38 440 $ или 32 820
    Агент
    +7 (918) 042-83-79
    Начать чат с агентом
    Похожие предложения
    1-к кв. Волгоградская область, Волгоград Логовская ул., 43 (28.4 м) - Фото 1
    1-к кв. Волгоградская область, Волгоград Логовская ул., 43 (28.4 м) - Фото 2
    1-комнатная квартира, общая площадь 28м², жилая 16м², кухня 5м²

    1-к квартира по адресу: Логовская ул, д. 43 в Советском районе;Хрущевская планировка: общая 28.40 / жилая 16.90 / кухня 5.80Квартира в хорошем состоянии. Пластиковые окна. На полу линолеум.При продаже остается: кухняКвартира не угловая, окна выходят во...
    • 28 м²
    • 1-ком
    • 2/5 эт.
    • кирпичный
    3 080 000 Р
    Агент
    +7 (989) Показать номер
    Посмотреть контакты
    1-к кв. Волгоградская область, Волгоград ул. Грибанова, 3А (24.61 м) - Фото 1
    1-к кв. Волгоградская область, Волгоград ул. Грибанова, 3А (24.61 м) - Фото 2
    1-комнатная квартира, общая площадь 24м², жилая 14м², кухня 5м²

    Современная и уютная 1-комнатная квартирка в доме по улице Грибанова в престижном месте Советского района Общая площадь квартиры составляет 24,61 м, которая грамотно распределена между уютной жилой и кухонной зоной, что является редким и значительным...
    • 24 м²
    • 1-ком
    • 10/22 эт.
    3 200 000 Р
    Агент
    +7 (989) Показать номер
    Посмотреть контакты
    3-к кв. Волгоградская область, Волгоград Университетский просп., 65 ... - Фото 1
    3-к кв. Волгоградская область, Волгоград Университетский просп., 65 ... - Фото 2
    3-комнатная квартира, общая площадь 55м², жилая 38м², кухня 7м²

    3-к квартира по адресу: Университетский пр-кт, д. 65 в Советском районе;Сталинская планировка: общая 55.50 / жилая 38.20 / кухня 7.60Раздельные комнаты: 17.9 + 10.90 + 9.4 метровКвартира в хорошем состоянии. Пластиковые окна. На полу линолеум. Есть 2...
    • 55 м²
    • 3-ком
    • 2/2 эт.
    • кирпичный
    3 200 000 Р
    Агент
    +7 (989) Показать номер
    Посмотреть контакты
    2-к кв. Волгоградская область, Волгоград ул. Полухина, 2/1 (46.9 м) - Фото 1
    2-к кв. Волгоградская область, Волгоград ул. Полухина, 2/1 (46.9 м) - Фото 2
    2-комнатная квартира, общая площадь 46м², жилая 29м², кухня 6м²

    2-к квартира по адресу: им. Полухина ул, д. 2/1 в Советском районе;Хрущевская планировка: общая 46.90 / жилая 29.80 / кухня 6.00Раздельные комнаты: 16.8 + 13.0 метровКвартира подготовлена под ремонт. Пластиковые окна на кухне и в спальне. На окнах решетки....
    • 46 м²
    • 2-ком
    • 1/5 эт.
    • кирпичный
    3 200 000 Р
    Агент
    +7 (989) Показать номер
    Посмотреть контакты
    1-к кв. Волгоградская область, Волгоград Университетский просп., 82 ... - Фото 1
    1-к кв. Волгоградская область, Волгоград Университетский просп., 82 ... - Фото 2
    1-комнатная квартира, общая площадь 31м², жилая 20м², кухня 4м²

    Продается уютная однокомнатная квартира на 5-ом этаже пятиэтажного дома в Советском районе по проспекту Университетский 82. Дом кирпичный, относится к типу хрущевка , что гарантирует проверенную временем планировку и надежность. Общая площадь квартиры...
    • 31 м²
    • 1-ком
    • 5/5 эт.
    3 200 000 Р
    Агент
    +7 (918) Показать номер
    Посмотреть контакты

    Не нашли подходящего объявления?

    Оставьте заявку, и наши риэлторы подберут квартиру в районе Волгограда

    (0)