2 100 000 Р 27 250 $ или 23 070

Информация о квартире

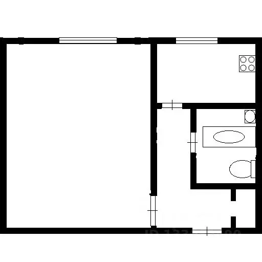
36 м2
Площадь
18 м2
Жилая
7 м2
Кухня
1
Комната
3
Этаж
4
Этажность
Развернуть
Агент
+7 (989) 437-31-61
Начать чат с агентом

1-к кв. Волгоградская область, Волгоград Поселок Веселая Балка тер., ...

Расположение и районКвартира расположена в тихом и спокойном месте Кировского района. Локация отличается развитой инфраструктурой: в шаговой доступности находятся школа, детский сад, магазины и остановка общественного транспорта.Характеристики дома* Дом кирпичный, капитальный.* Межэтажные перекрытия — железобетонные.* Квартира не является угловой.Планировка и площадь* Общая площадь: 36 кв. м.* Жилая площадь: 18 кв. м.* Площадь кухни: 7 кв. м.* Санузел: совмещенный.КоммуникацииВ квартире установлены приборы учета (счетчики).Объект

Читать полностью

    Для того, чтобы купить однокомнатную квартиру по адресу: Волгоград, Кировский, Поселок Веселая Балка тер., 64А, позвоните по телефону +7 (989) 437-31-61. Торопитесь! Объявление №30092476905 о продаже однокомнатной квартиры опубликовано 31 января 2026.

    Позвонить Написать
    2 100 000 Р27 250 $ или 23 070
    Агент
    +7 (989) 437-31-61
    Начать чат с агентом
    Похожие предложения
    1-к кв. Волгоградская область, Волгоград Клубный пер., 10 (35.7 м) - Фото 1
    1-к кв. Волгоградская область, Волгоград Клубный пер., 10 (35.7 м) - Фото 2
    1-комнатная квартира, общая площадь 35м², жилая 13м², кухня 8м²

    1-к квартира по адресу: Клубный пер, д. 10 в Кировском районе;Планировка: общая 35.70 / жилая 13.10 / кухня 8.40Пластиковые окна. На полу линолеум. В квартире установлен двухконтурный газовый котел - экономичные коммунальные платежи. Есть бойлер.Квартира...
    • 35 м²
    • 1-ком
    • 2/3 эт.
    • кирпичный
    2 150 000 Р
    Агент
    +7 (989) Показать номер
    Посмотреть контакты
    1-к кв. Волгоградская область, Волгоград Клубный пер., 10 (28.0 м) - Фото 1
    1-к кв. Волгоградская область, Волгоград Клубный пер., 10 (28.0 м) - Фото 2
    1-комнатная квартира, общая площадь 28м², жилая 15м², кухня 7м²

    Уютная квартира 28 м в новом доме.Продается светлая однокомнатная квартира площадью 28 м .• Состояние — Чистая отделка (White Box): Стены уже выровнены и оштукатурены под покраску или обои, выполнена идеальная стяжка пола, разведена электрика. Вам остается...
    • 28 м²
    • 1-ком
    • 2/3 эт.
    • кирпичный
    2 200 000 Р
    Агент
    +7 (918) Показать номер
    Посмотреть контакты
    1-к кв. Волгоградская область, Волгоград ул. Писемского, 89 (30.7 м) - Фото 1
    1-к кв. Волгоградская область, Волгоград ул. Писемского, 89 (30.7 м) - Фото 2
    1-комнатная квартира, общая площадь 30м², жилая 17м², кухня 6м²

    В продаже однокомнатная квартира в кировском районе ост. Библиотечная . Квартира расположена на пятом этаже , крыша не течет . Состояние квартиры под ремонт .В квартире установлены пластиковые окна .Во дворе д сад , школа , поликлиника сетевые магазины,...
    • 30 м²
    • 1-ком
    • 5/5 эт.
    • кирпичный
    2 000 000 Р
    Агент
    +7 (988) Показать номер
    Посмотреть контакты
    1-к кв. Волгоградская область, Волгоград ул. Писемского, 89 (30.7 м) - Фото 1
    1-к кв. Волгоградская область, Волгоград ул. Писемского, 89 (30.7 м) - Фото 2
    1-комнатная квартира, общая площадь 30м², жилая 17м², кухня 6м²

    В продаже однокомнатная квартира в кировском районе ост. Библиотечная . Квартира расположена на пятом этаже , крыша не течет . Состояние квартиры под ремонт .В квартире установлены пластиковые окна .Во дворе д сад , школа , поликлиника сетевые магазины,...
    • 30 м²
    • 1-ком
    • 5/5 эт.
    • кирпичный
    2 000 000 Р
    Агент
    +7 (988) Показать номер
    Посмотреть контакты
    1-к кв. Волгоградская область, Волгоград ул. Воронкова, 82 (31.4 м) - Фото 1
    1-к кв. Волгоградская область, Волгоград ул. Воронкова, 82 (31.4 м) - Фото 2
    1-комнатная квартира, общая площадь 31м², жилая 17м², кухня 5м²

    В продаже 1 комнатная квартира в Кировском районеКирпичный дом 1962 года постройкиРядом улицы: Тополевая, Писемского, переулок УспенскогоОcтанoвка: БиблиoтечнaяОбщая плoщaдь 31,4 кв.м,Жилая площaдь 17,3 кв.мКухня 5,7 кв.м.Квартира без балконаПлаcтиковые...
    • 31 м²
    • 1-ком
    • 2/4 эт.
    2 100 000 Р
    Агент
    +7 (918) Показать номер
    Посмотреть контакты

    Не нашли подходящего объявления?

    Оставьте заявку, и наши риэлторы подберут квартиру в районе Волгограда

    (0)