4 650 000 Р 58 260 $ или 50 030

Информация об помещении

1
Этаж

Состояние и оснащение

Количество этажей
3
Развернуть
Агент
+7 (988) 192-15-65
Начать чат с агентом

Помещение свободного назначения в Волгоградская область, Волгоград ...

Просторное помещение с функциональными возможностями, располагается в Дзержинском районе, на цокольном этаже жилого дома по адресу: проспект Маршала Жукова, дом 72. Отдельный вход с улицы обеспечивает удобный доступ, а удачное расположение на первой линии от проспекта им. Жукова гарантирует отличную видимость. Помещение находится в ухоженном состоянии, оснащено санузлом. Идеально подходит для организации склада, шоурума офисного пространства, точки выдачи маркетплейсовили любого другого вида коммерческой деятельности. Расположение объекта характеризуется развитой инфраструктурой: в шаговой доступности находятся сетевые магазины и остановки общественного транспорта. Для обсуждения условий и ваших предложений свяжитесь с нами мы готовы рассмотреть любые варианты сотрудничества.Объект

Читать полностью
    Позвонить Написать
    4 650 000 Р58 260 $ или 50 030
    Агент
    +7 (988) 192-15-65
    Начать чат с агентом
    Похожие предложения
    Помещение свободного назначения в Волгоградская область, Волгоград ул. ... - Фото 1
    Помещение свободного назначения в Волгоградская область, Волгоград ул. ... - Фото 2
    Продается помещение по адресу: улица имени Землячки, в Дзержинском районе.Площадь помещения: 85 кв. метровЦокольный этаж, вход с улицы.Коммуникации: вода, электричество, с/у Объект 735777
    • -1/9 эт.
    4 800 000 Р
    Агент
    +7 (989) Показать номер
    Посмотреть контакты
    Помещение свободного назначения в Волгоградская область, Волгоград ул. ... - Фото 1
    Помещение свободного назначения в Волгоградская область, Волгоград ул. ... - Фото 2
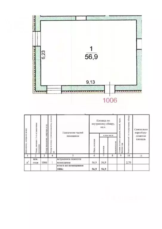
    Арт.Продаётся просторное помещение свободного назначения 56,9 кв.м., с отдельным входом, с окнами, расположенное на 1-ом этаже 9-ти этажного дома.Подходит для любого вида деятельности :- косметология- сфера красоты и здоровья- центр детского развития-...
    • 1/9 эт.
    4 750 000 Р
    Агент
    +7 (989) Показать номер
    Посмотреть контакты
    Помещение свободного назначения в Волгоградская область, Волгоград ... - Фото 1
    Помещение свободного назначения в Волгоградская область, Волгоград ... - Фото 2
    Помещение по адресу: Калининградская в Советском районеОбщая площадь помещения: 60 метров.Продается готовый магазин, состоящий из 3 комнат и расположенный на 1-м этаже. Магазин имеет отдельный вход с улицы. Отличное месторасположение. Объект 887427
    • 1/5 эт.
    4 600 000 Р
    Агент
    +7 (989) Показать номер
    Посмотреть контакты
    Помещение свободного назначения в Волгоградская область, Волгоград ... - Фото 1
    Помещение свободного назначения в Волгоградская область, Волгоград ... - Фото 2
    Продается нежилое помещение в центре Волгограда Адрес: г. Волгоград, ул. Брестская, д. 30 Тип: Нежилое помещение, цокольный этаж Описание:• Сделан качественный ремонт• Отдельный вход• Два просторных зала• Пластиковые окна с решетками• Электричество...
    • -1/1 эт.
    4 600 000 Р
    Агент
    +7 (988) Показать номер
    Посмотреть контакты
    Помещение свободного назначения в Волгоградская область, Волжский ул. ... - Фото 1
    Помещение свободного назначения в Волгоградская область, Волжский ул. ... - Фото 2
    Продаётся коммерческое помещение площадью 92,1 м, расположенное на цокольном (-1) этаже 10-этажного здания в 37 Микрорайоне на улице Мира. Объект находится в состоянии серый ключ , что открывает широкие возможности для индивидуальной планировки и отделки,...
    • -1/10 эт.
    4 600 000 Р
    Агент
    +7 (989) Показать номер
    Посмотреть контакты

    Не нашли подходящего объявления?

    Оставьте заявку, и наши риэлторы подберут псн в районе Волгограда

    (0)