6 300 000 Р 84 800 $ или 71 150

Информация об помещении

1
Этаж

Состояние и оснащение

Количество этажей
5
Развернуть
Агент
+7 (939) 408-77-71
Начать чат с агентом

Помещение свободного назначения в Волгоградская область, Волгоград ...

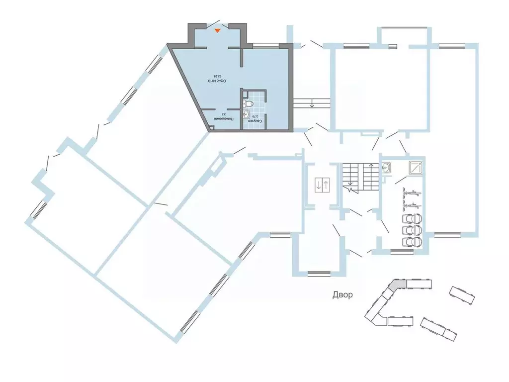
Продается помещение свободного назначения, расположенное в ЦОКОЛЬНОМ этаже жилого дома по ул.Калеганова 9.Планировка коридорного типа, кабинеты на обе стороны дома. Перегородки между помещениями не несущие, в связи с этим возможна перепланировка и объединение некоторых кабинетов в единое большое пространство. Отдельный вход, окна полноразмерные, расположены выше земли и в световых приямках, имеется санузел, высота потолков 2,8м. В настоящее время на 90 площадей заселены арендаторы. При использовании в качестве арендного бизнеса потенциальная окупаемость 8-9 лет. Перед офисом имеется парковка.Помещение расположено в густонаселенном районе, рядом ЖК Клубный дом Романов, Романовъ. New Life, Респект, Царицыно, девяти и пятиэтажная застройкаДо остановки общественного транспорта 300м, пешеходные потоки жителей этого квартала проходят рядом со зданием, поэтому помещение подходит как для размещения офисов, так и для магазинов, шоурумов, пунктов выдачи, бизнеса в сфере услуг, развлечений и др.Собственник физлицо. Возможны различные варианты оплаты.Звоните, организую просмотр и отвечу на дополнительные вопросы. Код пользователя: 162980Номер в базе: 8930014

Читать полностью
    Позвонить Написать
    6 300 000 Р84 800 $ или 71 150
    Агент
    +7 (939) 408-77-71
    Начать чат с агентом
    Похожие предложения
    Помещение свободного назначения в Волгоградская область, Волгоград ... - Фото 1
    Помещение свободного назначения в Волгоградская область, Волгоград ... - Фото 2
    Продаётся Автомастерская в Тракторозаводском районе, на территории СНТ Мичуринец-7 по улице Героев Шипки.Здание и земельный участок в собственности.Общая площадь: 154 кв.м.Участок: 3,1 сот.Коммуникации: газ проходит рядом, вода, электричество, канализация,...
    • 1/1 эт.
    6 250 000 Р
    Агент
    +7 (989) Показать номер
    Посмотреть контакты
    Помещение свободного назначения в Волгоградская область, Волгоград ул. ... - Фото 1
    Помещение свободного назначения в Волгоградская область, Волгоград ул. ... - Фото 2
    Продается нежилое помещение по адресу: улица Штеменко, 7 в ЖК Красная Усадьба в Краснооктябрьском районе.Общая площадь: 149.1 кв. метр. Ранее использовалось как офис организации. Высокий автомобильный и пешеходный трафики. В помещении высокие потолки,...
    • -1/10 эт.
    6 300 000 Р
    Агент
    +7 (989) Показать номер
    Посмотреть контакты
    Помещение свободного назначения в Волгоградская область, Волгоград ул. ... - Фото 1
    Помещение свободного назначения в Волгоградская область, Волгоград ул. ... - Фото 2
    Продаю помещение ЭКСКЛЮЗИВ Дизайнерский ремонт. Электрический камин в пасти у медведя Помещение полностью функционально - заезд возможен на следующий день после полной оплаты Принудительная вентиляция. Сан узлы в идеальном состоянии. Световые решения...
    • 1/10 эт.
    6 200 000 Р
    Агент
    +7 (918) Показать номер
    Посмотреть контакты
    Помещение свободного назначения в Волгоградская область, Иловля рп ул. ... - Фото 1
    Помещение свободного назначения в Волгоградская область, Иловля рп ул. ... - Фото 2
    Номер объекта: 539674. В чистой продаже отдельно стоящее здание общей площадью 69,2 м2.Расположено вдоль дороги,есть заезд для авто,асфальтированная освещаемая зона ожидания с лавочками.На данный момент там расположена частная клиника кабинет УЗИ,Принимает...
    • 1/1 эт.
    6 200 000 Р
    Агент
    +7 (988) Показать номер
    Посмотреть контакты
    Продажа ПСН, Казань, ул. Спартаковская - Фото 1
    Продажа ПСН, Казань, ул. Спартаковская - Фото 2
    Продажа ПСН, Казань, ул. Спартаковская - Фото 3
    Продажа ПСН, Казань, ул. Спартаковская - Фото 4
    общая площадь 31м², полезная площадь 31м²

    Объект №118427 первый этаж выход на улицу продается помещение под коммерцию - 30 м кв. выход на ул спартаковскую. Рядом открыт Барбер салон. отлично подойдет под торговлю, небольшое кафе или бьюти.
    • 31 м²
    • 1-й эт.
    6 400 000 Р
    Агент
    +7 (843) Показать номер
    Агентство
    ФЛЭТ
    Посмотреть контакты

    Не нашли подходящего объявления?

    Оставьте заявку, и наши риэлторы подберут псн в районе Волгограда

    (0)