9 500 000 Р 119 600 $ или 101 300

Информация об помещении

цоколь
Этаж

Состояние и оснащение

Количество этажей
5
Развернуть
Агент
+7 (989) 812-75-65
Начать чат с агентом

Помещение свободного назначения в Волгоградская область, Волгоград ...

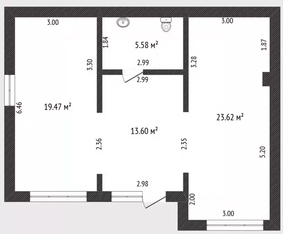
Продается цокольное помещение в жилом доме по адресу: Республиканская улица, 14, микрорайон Жилгородок, Волгоград.Общая площадь: 341.5 кв. метров.В помещении 2 входа, 2 санузла.На территории расположено швейное ателье, болееабочих мест: - пуговичная;- верстка;- раскрой;- демонстрационный зал.В приоритете продажа с оборудованием (.). Объект 934079

Читать полностью
    Позвонить Написать
    9 500 000 Р119 600 $ или 101 300
    Агент
    +7 (989) 812-75-65
    Начать чат с агентом
    Похожие предложения
    Помещение свободного назначения в Волгоградская область, Волгоград ... - Фото 1
    Помещение свободного назначения в Волгоградская область, Волгоград ... - Фото 2
    Торг возможен, предлагайте свою цену Продается отдельно стоящее здание площадью 138,9м2 на земельном участке 5,7сот(участок в аренде до 2071г, есть возможность выкупа). Въезд с ул Елецкая и ул Саранская.Планировка свободная, высота помещений 3-4м. Подходит...
    • 1/1 эт.
    9 500 000 Р
    Агент
    +7 (939) Показать номер
    Посмотреть контакты
    Помещение свободного назначения в Волгоградская область, Волгоград ... - Фото 1
    Помещение свободного назначения в Волгоградская область, Волгоград ... - Фото 2
    Продается помещение по адресу: бульвар 30-летия Победы, 19Б в Дзержинском районе, Волгоград.Общая площадь помещения: 112.7 кв. метров.Продается помещение в Дзержинском районе на 7 ветрах за Парк Хаусом. Новый дом. В помещении только завершили ремонт....
    • -1/20 эт.
    9 500 000 Р
    Агент
    +7 (989) Показать номер
    Посмотреть контакты
    Помещение свободного назначения (112.7 м) - Фото 1
    Помещение свободного назначения (112.7 м) - Фото 2
    Продается помещение по адресу: бульвар 30-летия Победы, 19Б в Дзержинском районе, Волгоград.Общая площадь помещения: 112.7 кв. метров.Продается помещение в Дзержинском районе на 7 ветрах за Парк Хаусом. Новый дом. В помещении только завершили ремонт....
    • 20 этажей
    9 500 000 Р
    Агент
    +7 (988) Показать номер
    Посмотреть контакты
    Помещение свободного назначения в Тюменская область, Тюмень ул. ... - Фото 1
    Помещение свободного назначения в Тюменская область, Тюмень ул. ... - Фото 2
    Выгодное коммерческое помещение для вашего бизнеса Без комиссии Локация с высокой проходимостьюПомещение находится между ЖК Краснолесье (14 домов) и ЖК Мозаика Парк (5 корпусов), рядом коттеджный посёлок гарантированный поток клиентов. Удобный...
    • 1/10 эт.
    9 500 000 Р
    Агент
    +7 (912) Показать номер
    Посмотреть контакты
    Помещение свободного назначения в Калужская область, Калуга ул. ... - Фото 1
    Помещение свободного назначения в Калужская область, Калуга ул. ... - Фото 2
    В продаже от застройщика ЖК Космопарк г. Калуга, Литер Срок сдачи: 1 кв. 2027, общей площадью 41.14 кв.м.,на 1 этаже. Жилой квартал Космопаркасположен вЛенинском округе Калуги, на левом берегу Оки, недалеко от центра города. Вокруг развитый район:...
    • 1/25 эт.
    9 462 200 Р
    Агент
    +7 (910) Показать номер
    Посмотреть контакты

    Не нашли подходящего объявления?

    Оставьте заявку, и наши риэлторы подберут псн в районе Волгограда

    (0)