23 760 Р 283 $ или 244

Информация о помещении и здании

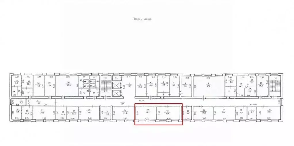
2
Этаж
5
Этажность
Развернуть
Агент
+7 (989) 851-70-25
Начать чат с агентом

Офис в Волгоградская область, Волгоград Коммунистическая ул., 21 (22 ...

От собственника без комиссии Ищете компактное, но функциональное офисное пространство в центре города? Представляем уютное помещение 21,6 м в современном бизнесцентре — идеальное решение для стартапа, представительства или удалённой команды Почему это помещение — ваш лучший выбор:Престижная локация — расположение в центре города, в престижном бизнес-центре.Оптимальная площадь — 21,6 м достаточно для:рабочего места руководителя;абочих мест сотрудников;зоны приёма клиентов;хранения документов и оргтехники.Безопасность — круглосуточная охрана, система видеонаблюдения, пропускная система.Готовность к работе — можно заезжать сразу после подписания договора.Идеально подходит для:стартапа или малого бизнеса;представительства компании в регионе;юридической или консалтинговой практики;ITкомпании или дизайнстудии;туристического бюро;маркетингового или PRагентства;удалённого офиса крупной компании;частной практики ;бухгалтерской или кадровой службы;callцентра или службы поддержки.Звоните прямо сейчас Организуем показ в удобное время, предоставим план помещения и ответим на все вопросы.

Читать полностью
    Позвонить Написать
    23 760 Р283 $ или 244
    Агент
    +7 (989) 851-70-25
    Начать чат с агентом
    Похожие предложения
    Офис в Волгоградская область, Волгоград ул. Мира, 19 (32 м) - Фото 1
    Офис в Волгоградская область, Волгоград ул. Мира, 19 (32 м) - Фото 2
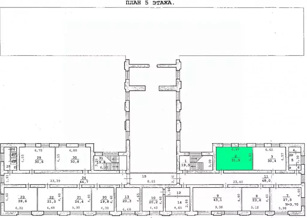
    5-й этаж, всего 5 этажей

    От собственника без комиссии Сдается офисное помещение площадью 31,9 м2 в Центральном р-не Волгограда~ Состояние ремонта - отличное;~ 5 этаж, корпус 1;~ Сплит-система;~ Доступ с 7 до 21, но возможен и 24/7 по договоренности;~ Интернет провайдеры: Ростелеком,...
    • 5/5 эт.
    24 882 Р
    Агент
    +7 (989) Показать номер
    Посмотреть контакты
    Офис в Волгоградская область, Волгоград Академическая ул., 14/1 (32 м) - Фото 1
    Офис в Волгоградская область, Волгоград Академическая ул., 14/1 (32 м) - Фото 2
    3-й этаж, всего 8 этажей

    От собственника без комиссии Ищете компактное, но функциональное офисное пространство? Предлагаем уютные офисы площадью от 16 до 46 м в современном бизнесцентре — идеальное решение для небольшой команды или стартапа ~ 2 пассажирских лифта в здании;~...
    • 3/8 эт.
    25 000 Р
    Агент
    +7 (989) Показать номер
    Посмотреть контакты
    Офис в Волгоградская область, Волгоград Козловская ул., 16 (23 м) - Фото 1
    Офис в Волгоградская область, Волгоград Козловская ул., 16 (23 м) - Фото 2
    2-й этаж, всего 16 этажей

    Помещение в аренду;Ворошиловский район , Козловская 16;- площадь 23 кв.м.;- 2 этаж;- офисный ремонт;- сплит система ;- сан узел на этаже ;- стоимость аренды кв.м. ( все включено)
    • 2/16 эт.
    23 000 Р
    Агент
    +7 (918) Показать номер
    Посмотреть контакты
    Офис (17 м) - Фото 1
    Офис (17 м) - Фото 2
    1-й этаж, всего 10 этажей

    Станьте Арендатором офиса ОТ СОБСТВЕННИКА БЕЗ КОМИССИИ по адресу: Волгоград, ул. Невская, 11а1 этажПлощадь 17 м2 зона кухни светлое помещений отдельный входСумма аренды/мес.Волгоград, ул. Невская, 11аMOST profressional broker - Nota bene.
    • 1/10 эт.
    24 650 Р
    Агент
    +7 (917) Показать номер
    Посмотреть контакты
    Офис в Волгоградская область, Волгоград Рабочий поселок Гумрак тер., ... - Фото 1
    Офис в Волгоградская область, Волгоград Рабочий поселок Гумрак тер., ... - Фото 2
    1-й этаж, всего 5 этажей

    Предлагаем вам рассмотреть офисное помещение в Дзержинском районе на цокольном этаже общей площадью 88кв.м..Вход со стороны двора. Кабинеты от 9.9кв.мТакже обустроена охранная сигнализация, имеется водоснабжение, канализация, здание электрифицировано...
    • 1/5 эт.
    25 000 Р
    Агент
    +7 (988) Показать номер
    Посмотреть контакты

    Не нашли подходящего объявления?

    Оставьте заявку, и наши риэлторы подберут офис в районе Волгограда

    (0)