56 862 Р 713 $ или 617

Информация о помещении и здании

5
Этаж
5
Этажность
Развернуть
Агент
+7 (989) 851-70-25
Начать чат с агентом

Офис в Волгоградская область, Волгоград ул. Мира, 19 (73 м)

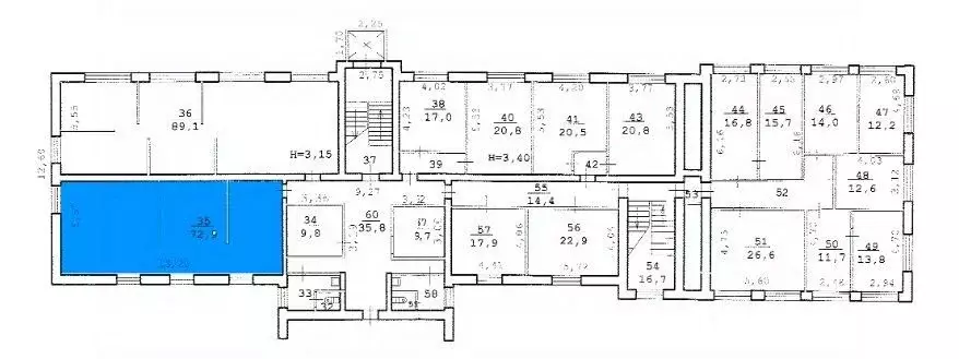
От собственника без комиссии Сдается офисное помещение площадью 72,9 м2 в Центральном р-не Волгограда~ Состояние ремонта - хоршее;~ 5 этаж, 2 корпус;~ Сплит-система;~ Доступ с 7 до 21, но возможен и 24/7 по договоренности;~ Интернет провайдеры: Ростелеком, Билайн, МТС, Мегафон, ЭР-Телеком (договор заключается напрямую с провайдером);~ Чистый сан.узел на этаже;~ Объект расположен в пешей доступности от ЖД Вокзала и остановок общественного транспорта (Порт Саида - Комсомольская);~ Арендная ставка в месяц за м2;~ Оплата за первый и последний месяц (обеспечительный платеж);~ Есть возможность снять и другие площади на разных этажах офисного центра.Звоните, договоримся

Читать полностью
    Позвонить Написать
    56 862 Р713 $ или 617
    Агент
    +7 (989) 851-70-25
    Начать чат с агентом
    Похожие предложения
    Офис в Волгоградская область, Волжский пл. Труда, 19 (140 м) - Фото 1
    Офис в Волгоградская область, Волжский пл. Труда, 19 (140 м) - Фото 2
    цокольный этаж, всего 9 этажей

    Сдается в аренду помещение на цокольном этаже здания в г. Волжском, 10-й мкрн. Отличное предложение для бизнеса.Идеально подойдет для: Магазина стройматериалов Салона красоты, барбершопа, тату-студии Офиса, студии, мастерской Тренажерного зала Стоимость:...
    • -1/9 эт.
    56 000 Р
    Агент
    +7 (918) Показать номер
    Посмотреть контакты
    Офис в Свердловская область, Екатеринбург ул. Московская, 195 (37 м) - Фото 1
    Офис в Свердловская область, Екатеринбург ул. Московская, 195 (37 м) - Фото 2
    7-й этаж, всего 25 этажей

    Предлагаю снять в аренду офисное помещение г Екатеринбург, ул. Московская 195.Метраж 37,3 м2Этаж 7Депозит 1 месЦена. м2 +куID объекта в нашей базе: 865
    • 7/25 эт.
    56 000 Р
    Агент
    +7 (912) Показать номер
    Посмотреть контакты
    Офис в Ульяновская область, Ульяновск ул. Ефремова, 50 (230 м) - Фото 1
    Офис в Ульяновская область, Ульяновск ул. Ефремова, 50 (230 м) - Фото 2
    3-й этаж, всего 4 этажа

    ОписаниеОфис Помещение 230 мБЕЗ КОМИССИИ ДЛЯ АРЕНДАТОРА Номер объекта в базе 20829Площадь: 230 кв.м Можно по кабинетно, согласно схемы Этаж: 3Этажность: 4Все коммуникации проведеныДоступ в помещение: 7:00-20:00.Количество входов: 1.Коммунальные платежи:...
    • 3/4 эт.
    57 500 Р
    Агент
    +7 (989) Показать номер
    Посмотреть контакты
    Офис в Санкт-Петербург ул. Достоевского, 19/21Б (22 м) - Фото 1
    Офис в Санкт-Петербург ул. Достоевского, 19/21Б (22 м) - Фото 2
    2-й этаж, всего 5 этажей

    Кластер Игры разума предлагает в долгосрочную аренду 2 дизайнерских офиса площадью 22,1 кв.м. и 23 кв.м.Адрес: Санкт-Петербург, ул. Достоевского, 19/21, лит. Б (6-10 минут от метро Достоевская/Владимирская и Лиговский проспект). Офисы расположены на 2-м...
    • 2/5 эт.
    57 239 Р
    Агент
    +7 (911) Показать номер
    Посмотреть контакты
    Офис в Нижегородская область, Нижний Новгород ул. Литвинова, 74к31 (70 ... - Фото 1
    Офис в Нижегородская область, Нижний Новгород ул. Литвинова, 74к31 (70 ... - Фото 2
    2-й этаж, всего 5 этажей

    Аренда офиса 70кв.м. на ул. Литвинова 74к31. Офисное помещение в БЦ имеет 2 комнаты, кондиционер, пожарная сигнализация, охрана, круглосуточный доступ по согласованию, сан-узел на этаже, парковка перед зданием за шлагбаумом.Площадь 70 кв.м. за 56. в мес....
    • 2/5 эт.
    56 000 Р
    Агент
    +7 (910) Показать номер
    Посмотреть контакты

    Не нашли подходящего объявления?

    Оставьте заявку, и наши риэлторы подберут офис в районе Волгограда

    (0)