118 575 Р 1 500 $ или 1 300

Информация об помещении

1
Этаж

Состояние и оснащение

Количество этажей
1
Развернуть
Агент
+7 (989) 812-75-65
Начать чат с агентом

Производственное помещение в Волгоградская область, Волгоград ...

Сдается складское/производственное помещение в Ворошиловском районе по адресу: Козловская улица, 54, Волгоград.Площадь помещения: 263.5 кв. метров.Удобное местоположение, высокие автомобильный и пешеходный трафики. Помещение находится на территории охраняемой торгово\складской базы. Высокие потолки, закрытый пандус, отопление, санузел. На территории базы имеются свободные офисные помещения. Есть парковочные места как перед въездом так и внутри базы Помещение подойдет для складского хранения или производства. Объект 933800

Читать полностью
    Позвонить Написать
    118 575 Р1 500 $ или 1 300
    Агент
    +7 (989) 812-75-65
    Начать чат с агентом
    Похожие предложения
    Производственное помещение в Волгоградская область, Волгоград Рабочий ... - Фото 1
    Производственное помещение в Волгоградская область, Волгоград Рабочий ... - Фото 2
    Сдается новое складское/производственное помещение по адресу: улица Луконина, 16, территория Рабочий посёлок Водстрой, в Тракторозаводском районе, Волгоград.Общая площадь: 400 кв. метров.Помещение состоит из двух залов 300 и 100 кв. метров соответственно....
    • 1/1 эт.
    130 000 Р
    Агент
    +7 (989) Показать номер
    Посмотреть контакты
    Производственное помещение в Челябинская область, Челябинск ... - Фото 1
    Производственное помещение в Челябинская область, Челябинск ... - Фото 2
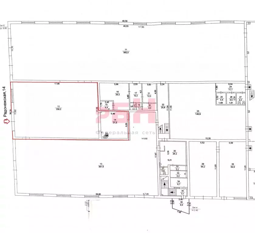
    ОТ СОБСТВЕННИКА БЕЗ КОМИССИИ.Сдам теплое помещение под производство или склад площадью 240,8 м + офисы 61,4 м, по адресу: г. Челябинск ул. Радонежская 14Основные характеристики и преимущества помещения:- помещение в собственности, все документы;- удобный...
    • 1/2 эт.
    130 000 Р
    Агент
    +7 (982) Показать номер
    Посмотреть контакты
    Производственное помещение в Ленинградская область, Всеволожский ... - Фото 1
    Производственное помещение в Ленинградская область, Всеволожский ... - Фото 2
    Производственно-складской комплекс находится в промышленной зоне Лесное, в 40 километрах от Санкт-Петербурга по Ново-Приозерскому шоссе, рядом с КАД. Дорога на автомобиле занимает 25-30 минут. На территории проложена собственная железнодорожная ветка...
    • 1/1 эт.
    115 000 Р
    Агент
    +7 (981) Показать номер
    Посмотреть контакты
    Производственное помещение в Краснодарский край, Геленджик Южная ... - Фото 1
    Производственное помещение в Краснодарский край, Геленджик Южная ... - Фото 2
    Сдам производственное помещение, 230 мОт собственника. Без комиссии.- Производственно- офисное помещение- Электричество 30 квт- Септик - Скважина- Можно арендовать вместе с участком, общая площадь участка 15 соток- Цена, площадь и ремонт обсуждаются по...
    • 1/3 эт.
    130 000 Р
    Агент
    +7 (918) Показать номер
    Посмотреть контакты
    Производственное помещение в Ульяновская область, Ульяновск проезд ... - Фото 1
    Производственное помещение в Ульяновская область, Ульяновск проезд ... - Фото 2
    ОписаниеБЕЗ КОМИССИИ ДЛЯ АРЕНДАТОРА Номер объекта в базе 17700Площадь: 560 кв.м ( 380 метров тёплого + 180 метров холодного) Этаж: 1Этажность: 2Все коммуникации проведеныДоступ в помещение: 24/7.Количество входов: 2.Коммунальные платежи: оплачиваются...
    • 1/2 эт.
    122 000 Р
    Агент
    +7 (986) Показать номер
    Посмотреть контакты

    Не нашли подходящего объявления?

    Оставьте заявку, и наши риэлторы подберут производственное помещение в районе Волгограда

    (0)