300 000 Р 3 860 $ или 3 330

Информация об помещении

1
Этаж

Состояние и оснащение

Количество этажей
1
Развернуть
Агент
+7 (918) 663-59-52
Начать чат с агентом

Помещение свободного назначения в Волгоградская область, Волгоград ул. ...

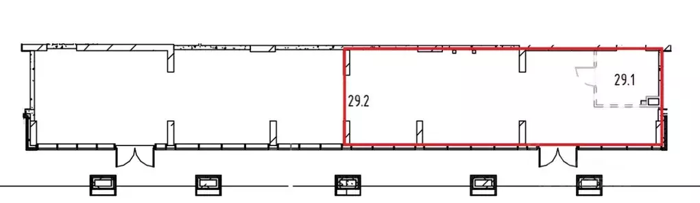
Сдается отдельно стоящее административное здание в Краснооктябрьском районе Волгограда по ул. Алехина, д. 7, корп. 3: площадью-857, 3 кв. м.; этажность -1. электроэнергия-94 кВт, возможность устройства вытяжки, электро-отопление. Земельный участок- 2647 кв. м., вода, канализация, кровля-профнастил, пять входов, подъездные пути, в 200 метрах вторая Продольная. Вид использования: под складское помещение; гостиницу, в том числе специализированную (рабочую); сервисный центр; мастерскую. Возможна сдача от 200 кв. м.Арт.

Читать полностью
    Позвонить Написать
    300 000 Р3 860 $ или 3 330
    Агент
    +7 (918) 663-59-52
    Начать чат с агентом
    Похожие предложения
    Помещение свободного назначения в Волгоградская область, Волгоград ул. ... - Фото 1
    Помещение свободного назначения в Волгоградская область, Волгоград ул. ... - Фото 2
    Аренда помещения свободного назначения.Стоимость:/кв.м.Этаж: 1 этаж - зал/openspace + кабинеты;Подвал - используется как склад, возможна как загрузка со двора или использовать как гараж - полноценный заезд.;Помещение имеет 3 отдельных выхода.Отопление...
    • 1/10 эт.
    300 960 Р
    Агент
    +7 (918) Показать номер
    Посмотреть контакты
    Помещение свободного назначения в Волгоградская область, Волгоград ... - Фото 1
    Помещение свободного назначения в Волгоградская область, Волгоград ... - Фото 2
    Сдается помещение в Центральном районе города Волгограда на первом этаже в жилом доме по адресу: улица Советская, 27.Площадь: 242 кв. м.Преимущества:-отдельный вход со стороны улицы Советская, с высоким транспортным и пешеходным трафиком;-развитая инфраструктура...
    • 1/5 эт.
    300 000 Р
    Агент
    +7 (989) Показать номер
    Посмотреть контакты
    Помещение свободного назначения в Москва Ленинградское ш., 228к5 (129 ... - Фото 1
    Помещение свободного назначения в Москва Ленинградское ш., 228к5 (129 ... - Фото 2
    Лот 158907.Предлагается в аренду торговое помещение в монолитном 15и этажном жилом доме, расположенном по адресу: Москва, Ленинградское шоссе, 228к5 (ЖК 1-й Ленинградский , корпус 5) Район Молжаниново относится к Северному округу столицы и расположен...
    • 1/15 эт.
    297 400 Р
    Агент
    +7 (985) Показать номер
    Посмотреть контакты
    Помещение свободного назначения в Москва Жилой комплекс остров, 4-й ... - Фото 1
    Помещение свободного назначения в Москва Жилой комплекс остров, 4-й ... - Фото 2
    Аренда ПСН площадью 65.4 м2, в прямую аренду на любой срок. Минимальный срок аренды 36 мес с предоплатой за 1 месяц. Помещение располагается в 16-этажном жилом комплексе в 8 мин. пешком от м.Терехово, район города - Хорошево-Мневники. Помещение находится...
    • 1/16 эт.
    299 996 Р
    Агент
    +7 (985) Показать номер
    Посмотреть контакты
    Помещение свободного назначения в Московская область, Звенигород ... - Фото 1
    Помещение свободного назначения в Московская область, Звенигород ... - Фото 2
    1065636 . Предлагаем помещение свободного назначения формата Street Retail, площадью 146.2 кв. м, расположенное на первом этаже 17-этажного жилого дома в ЖК Восточный .Преимущества объекта:-первая линия домов;-ЖК состоит из 12 корпусов переменной этажности...
    • 1/17 эт.
    292 400 Р
    Агент
    +7 (938) Показать номер
    Посмотреть контакты

    Не нашли подходящего объявления?

    Оставьте заявку, и наши риэлторы подберут псн в районе Волгограда

    (0)