210 300 Р 2 770 $ или 2 330

Информация об помещении

цоколь
Этаж

Состояние и оснащение

Количество этажей
9
Развернуть
Агент
+7 (989) 812-75-65
Начать чат с агентом

Помещение свободного назначения в Волгоградская область, Волгоград ул. ...

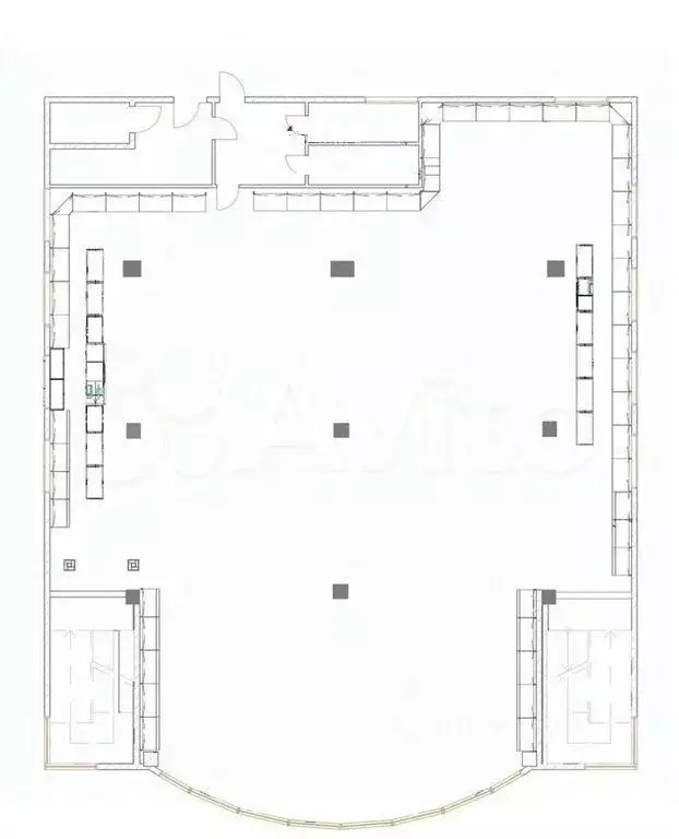
Сдаются помещения для бизнеса в Центральном районе Волгограда по адресу: улица Рокоссовского, 44.Общая площадь: 140.2 кв. метров.Первая линия, высокие пешеходный и автомобильный трафики, удобная парковка. Отличная транспортная доступность. Рядом есть вся необходимая инфраструктура, супермаркеты, пекарни, кафе, аптеки, банки остановки общественного транспорта и другое.Помещения сдаются полностью подготовленными с новым ремонтом и мокрыми точками. Площади 14; 25; 27;33; 36,2 кв. м. подойдут для различного вида деятельности торговли, салона красоты, малого производства, пвз, офиса, детского центра и прочего. Объект 939982

Читать полностью
    Позвонить Написать
    210 300 Р2 770 $ или 2 330
    Агент
    +7 (989) 812-75-65
    Начать чат с агентом
    Похожие предложения
    Помещение свободного назначения в Волгоградская область, Волгоград ул. ... - Фото 1
    Помещение свободного назначения в Волгоградская область, Волгоград ул. ... - Фото 2
    Предлагается в долгосрочную аренду помещение, расположенное на цокольном этаже по ул. Рокоссовского в Центральном районе г. Волгограда. Помещение просторное, имеет все необходимые коммуникации, отдельный вход, круглосуточный доступ, парковочная зона напротив...
    • -1/9 эт.
    217 500 Р
    Агент
    +7 (918) Показать номер
    Посмотреть контакты
    Помещение свободного назначения в Волгоградская область, Волгоград ... - Фото 1
    Помещение свободного назначения в Волгоградская область, Волгоград ... - Фото 2
    Помещение в аренду;- Центральный район, пр. Ленина 15- площадь 130 кв.м;- 1 этаж;- планировка смешанная (план на фото);- помещение без ремонта;- все коммуникации;- возможна вытяжка;- электроэнергия 15 кВт (если выше, надо обсуждать);- отличное месторасположение...
    • 1/5 эт.
    200 000 Р
    Агент
    +7 (918) Показать номер
    Посмотреть контакты
    Помещение свободного назначения (140.2 м) - Фото 1
    Помещение свободного назначения (140.2 м) - Фото 2
    Сдаются помещения для бизнеса в Вентральном районе Волгограда по адресу:улица Рокоссовского, 44.Общая площадь: 140.2 кв. метров.Первая линия, высокие пешеходный и автомобильный трафики, удобная парковка. Отличная транспортная доступность.Рядом есть вся...
    • 9 этажей
    210 300 Р
    Агент
    +7 (917) Показать номер
    Посмотреть контакты
    Помещение свободного назначения в Санкт-Петербург Ленинский просп., ... - Фото 1
    Помещение свободного назначения в Санкт-Петербург Ленинский просп., ... - Фото 2
    Арт.Свободное нежилое помещение 195,9 кв.м. в современном доме 2006 года постройки. Все коммуникации. 20-25 кВт. Высота потолков: 3.9 м. 2 входа (1-с фасада, отдельный с улицы, 2-ой-двор). Витринные окна. Жилой комплекс комфорт класса,ядом жилые...
    • 1/1 эт.
    200 000 Р
    Агент
    +7 (911) Показать номер
    Посмотреть контакты
    Помещение свободного назначения в Санкт-Петербург просп. Энгельса, 31 ... - Фото 1
    Помещение свободного назначения в Санкт-Петербург просп. Энгельса, 31 ... - Фото 2
    Сдаётся в аренду светлое и широкое помещение 103 м свободного назначения, с витринами и двумя входами. Ключевые преимущества сразу: —Первая линия, отличная видимость с улицыВитринные окна — много света, хорошо работает рекламаДва полноценных входа: с...
    • 1/12 эт.
    206 000 Р
    Агент
    +7 (911) Показать номер
    Посмотреть контакты

    Не нашли подходящего объявления?

    Оставьте заявку, и наши риэлторы подберут псн в районе Волгограда

    (0)