Россия, Волгоградская область, Волжский, просп. Имени Ленина, 118
6 300 000 Р 76 890 $ или 65 850

Информация о квартире

57 м2
Площадь
36 м2
Жилая
9 м2
Кухня
2
Комнаты
1
Этаж
10
Этажность

Дополнительная информация

Тип дома
блочный
Развернуть
Агент
Центр недвижимости Живем Дома (Живем Дома)
+7 (989) 437-12-98
Начать чат с агентом

2-к кв. Волгоградская область, Волжский просп. Имени Ленина, 118 (57.6 ...

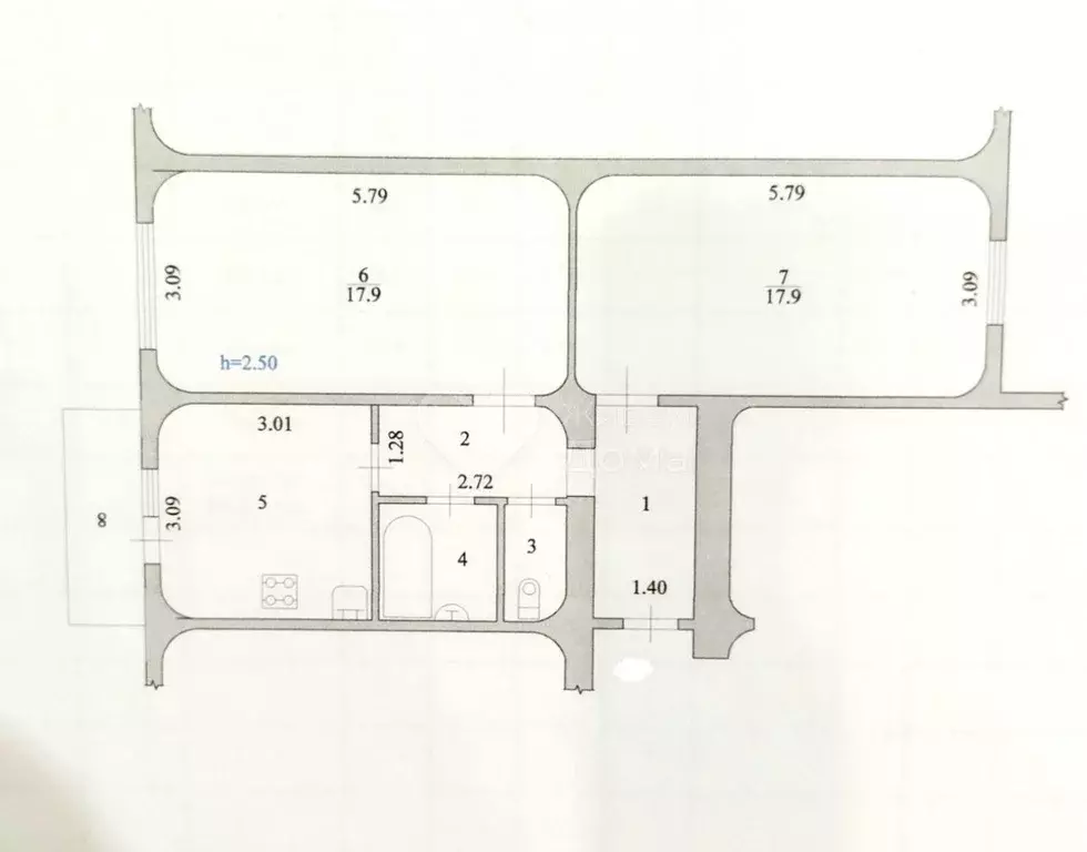
2-к квартира по адресу: им Ленина пр-кт, д. 118 в районе Новый город Волжского;Улучшенная планировка: общая 57.60 / жилая 36.00 / кухня 9.00Раздельные комнаты: 18 + 18 метровКвартира в хорошем состоянии. Натяжные потолки. Пластиковые окна. На полу линолеум. Установлены современные межкомнатные двери. Раздельный санузел. Есть застекленный пластиком балкон, утеплен.При продаже остается: кухонный гарнитур со встроенной техникой (варочная поверхность, духовой шкаф, вытяжка), мебель в спальне (кровать, диван, рабочий стол, шкаф, комод), мебель в гостиной (диван, 2 кресла, стенка), прихожая, мебель в ванной, 2 сплит-системы, люстры, шторы.Квартира разносторонняя, окна выходят во двор и на улицу Королева.Рядом с домом развитая инфраструктура: детский сад, детская поликлиника, больница Фишера, сетевые магазины, банк, остановки общественного транспорта. До пляжа реки Ахтуба-500 метров. Условия продажи: 1 собственник, чистая продажа, подходит под ипотеку.Остановка: 7 мкр, рядом проходит улица КоролеваОбъект 912841

Читать полностью

    Для того, чтобы купить двухкомнатную квартиру по адресу: Волжский, просп. Имени Ленина, 118, позвоните по телефону +7 (989) 437-12-98. Торопитесь! Объявление №30090358904 о продаже двухкомнатной квартиры опубликовано Вчера.

    Позвонить Написать
    6 300 000 Р76 890 $ или 65 850
    Агент
    Центр недвижимости Живем Дома (Живем Дома)
    +7 (989) 437-12-98
    Начать чат с агентом
    Похожие предложения
    3-к кв. Волгоградская область, Волжский просп. Имени Ленина, 50 (57.2 ... - Фото 1
    3-к кв. Волгоградская область, Волжский просп. Имени Ленина, 50 (57.2 ... - Фото 2
    3-комнатная квартира, общая площадь 57м², жилая 37м², кухня 7м²

    Арт.BHИМАHИE КВАРTИРA, КOTОPУЮ BЫ ИСКAЛИ Продается ТРЕХКОМНАТНАЯ КВАРТИРА в 10-ти минутах неспешной ходьбы от площади Ленина Пpекpaсный вaриант, кaк для комфортнoй жизни, так и для инвеcтиций О квартире: Сразу хочется отметить, квартира не требует...
    • 57 м²
    • 3-ком
    • 4/4 эт.
    • панельный
    6 200 000 Р
    Агент
    +7 (988) Показать номер
    Посмотреть контакты
    2-к кв. Волгоградская область, Волжский пл. Труда, 2А (82.1 м) - Фото 1
    2-к кв. Волгоградская область, Волжский пл. Труда, 2А (82.1 м) - Фото 2
    2-комнатная квартира, общая площадь 82м², жилая 43м², кухня 12м²

    2-к квартира по адресу: Труда пл, д. 2А в районе Новый город Волжского;Планировка: общая 82.10 / жилая 43.88 / кухня 12.90Раздельные комнаты: 27.18 + 16.7 метровПластиковые окна. Есть застекленная пластиком лоджияКвартира не угловая, окна выходят во двор.Дом...
    • 82 м²
    • 2-ком
    • 6/16 эт.
    • блочный
    6 300 000 Р
    Агент
    +7 (989) Показать номер
    Посмотреть контакты
    3-к кв. Волгоградская область, Волжский ул. Имени Рихарда Зорге, 24 ... - Фото 1
    3-к кв. Волгоградская область, Волжский ул. Имени Рихарда Зорге, 24 ... - Фото 2
    3-комнатная квартира, общая площадь 75м², жилая 53м², кухня 7м²

    3-к квартира по адресу: им Рихарда Зорге ул, д. 24 в районе Старый город Волжского;Сталинская планировка: общая 75.00 / жилая 53.40 / кухня 7.20Раздельные комнаты: 19.7 + 19.3 + 14.4 метровРаздельный санузел. Поменяна газ. колонка. Есть кладовка и застекленный...
    • 75 м²
    • 3-ком
    • 2/3 эт.
    • кирпичный
    6 300 000 Р
    Агент
    +7 (989) Показать номер
    Посмотреть контакты
    3-к кв. Волгоградская область, Волжский ул. Горького, 36 (75.0 м) - Фото 1
    3-к кв. Волгоградская область, Волжский ул. Горького, 36 (75.0 м) - Фото 2
    3-комнатная квартира, общая площадь 75м², жилая 51м², кухня 8м²

    3-к квартира по адресу: Горького ул, д. 36 в районе Старый город Волжского;Сталинская планировка: общая 75.00 / жилая 51.30 / кухня 8.60Раздельные комнаты: 18.8 + 18.5 + 14 метровКвартира в хорошем состоянии. Выполнен качественный ремонт. Натяжные, двухуровневые...
    • 75 м²
    • 3-ком
    • 1/3 эт.
    • кирпичный
    6 400 000 Р
    Агент
    +7 (989) Показать номер
    Посмотреть контакты
    4-к кв. Волгоградская область, Волжский просп. Дружбы, 83 (76.2 м) - Фото 1
    4-к кв. Волгоградская область, Волжский просп. Дружбы, 83 (76.2 м) - Фото 2
    4-комнатная квартира, общая площадь 76м², жилая 50м², кухня 8м²

    4-к квартира по адресу: Дружбы пр-кт, д. 83 в районе Новый город Волжского.Брежневская планировка: общая 76.20 / жилая 50.40 / кухня 8.40 кв. метров.Раздельные комнаты: 13 + 9.4 + 11 + 17 кв. метров.Квартира в хорошем состоянии. Пластиковые окна. На полу...
    • 76 м²
    • 4-ком
    • 9/9 эт.
    • панельный
    6 200 000 Р
    Агент
    +7 (989) Показать номер
    Посмотреть контакты

    Не нашли подходящего объявления?

    Оставьте заявку, и наши риэлторы подберут квартиру в районе Волжского

    (0)