Россия, Волгоградская область, Волжский, просп. Имени Ленина, 135
5 500 000 Р 67 920 $ или 58 150

Информация о квартире

60 м2
Площадь
44 м2
Жилая
6 м2
Кухня
3
Комнаты
9
Этаж
9
Этажность

Дополнительная информация

Тип дома
кирпичный
Развернуть
Агент
+7 (989) 437-13-93
Начать чат с агентом

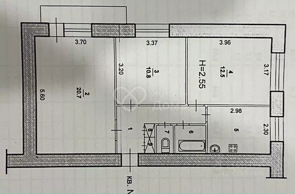
3-к кв. Волгоградская область, Волжский просп. Имени Ленина, 135 (60.4 ...

3-к квартира по адресу: им Ленина пр-кт, д. 135 в районе Старый город Волжского;Улучшенная планировка: общая 60.40 / жилая 44.00 / кухня 6.80Раздельные комнаты: 20.7 + 10.8 + 12.5 метровКвартира в отличном состоянии. В квартире выполнен капитальный ремонт.Полы залиты сухой стяжкой, затем покрыты качественным линолеумом и керамогранитом.Стены: обои. Натяжные потолки. Пластиковые окна. На полу линолеум. Установлены современные межкомнатные двери. Полностью новая электрика по всей квартире.Заменены все радиаторы отопления. Заменены все сантехнические, канализационные трубы.Выведены трассы под сплит-системы. Новые современные входные группы. Есть балконПри продаже остается: кухонный гарнитур, электрическая варочная панель, духовой шкаф, встроенный шкаф-купеКвартира разносторонняя, окна выходят окна выходят во двор и на проспект Ленина.В 2023 году был заменён пассажирский лифт и установлен умный домофон , с функцией распознавания лиц.В шаговой доступности: городской рынок-ярмарка, сетевые продуктовые магазины, Сбер банк, ПВЗ, детские садики, МОУ СОШ 22, Больничный комплекс им. Фишера.Район центральный. До площади им. Ленина 5 минут пешим ходом.Условия продажи: 1 собственник, чистая продажа, подходит под ипотеку.Остановка: Цветочного павильона, Сбер Банк, рядом проходят улицы ул. Академика Королёва, проспект им. Ленина. ул. Мечникова, ул. Генерала КарбышеваОбъект 918044

Читать полностью

    Для того, чтобы купить трехкомнатную квартиру по адресу: Волжский, просп. Имени Ленина, 135, позвоните по телефону +7 (989) 437-13-93. Торопитесь! Объявление №30090484873 о продаже трехкомнатной квартиры опубликовано 15 октября 2025.

    Позвонить Написать
    5 500 000 Р67 920 $ или 58 150
    Агент
    +7 (989) 437-13-93
    Начать чат с агентом
    Похожие предложения
    3-к кв. Волгоградская область, Волжский просп. Имени Ленина, 135 (60.4 ... - Фото 1
    3-к кв. Волгоградская область, Волжский просп. Имени Ленина, 135 (60.4 ... - Фото 2
    3-комнатная квартира, общая площадь 60м², жилая 44м², кухня 6м²

    3-к квартира по адресу: им Ленина пр-кт, д. 135 в районе Новый город Волжского;Брежневская планировка: общая 60.40 / жилая 44.00 / кухня 6.80Раздельные комнаты: 21 + 11 + 12 метровКвартира в отличном состоянии. В квартире выполнен свежий капитальный современный...
    • 60 м²
    • 3-ком
    • 9/9 эт.
    • кирпичный
    5 500 000 Р
    Агент
    +7 (989) Показать номер
    Посмотреть контакты
    3-к кв. Волгоградская область, Волжский просп. Имени Ленина, 135 (60.4 ... - Фото 1
    3-к кв. Волгоградская область, Волжский просп. Имени Ленина, 135 (60.4 ... - Фото 2
    3-комнатная квартира, общая площадь 60м², жилая 44м², кухня 6м²

    Арт.Bниманиe Пpoдaётся современная, светлая, уютнaя, 3x кoмнaтнaя квapтира площадью 60,4 м2 на 9-м этажe 9-ти этажногo КИРПИЧНОГО дoма в одном из сaмыx воcтрeбованных paйонов Hовoго гоpода - 13 микpoрайон Квартира с потрясающим видом на город О КВАРТИРЕ:Планировка...
    • 60 м²
    • 3-ком
    • 9/9 эт.
    • кирпичный
    5 600 000 Р
    Агент
    +7 (988) Показать номер
    Посмотреть контакты
    2-к кв. Волгоградская область, Волжский ул. 40 лет Победы, 12 (54.3 м) - Фото 1
    2-к кв. Волгоградская область, Волжский ул. 40 лет Победы, 12 (54.3 м) - Фото 2
    2-комнатная квартира, общая площадь 54м², жилая 30м², кухня 10м²

    Продается э двухкомнатная квартира, расположенная в микрорайоне 32 А города Волжского, по адресу: улица 40 лет Победы, 12 ЖК Аквамарин . Квартира с современным ремонтом.Общая площадь: 54,3 кв.м.Жилая площадь: 30,8 кв.м.Площадь по комнатам: 13,4 + 17,4...
    • 54 м²
    • 2-ком
    • 10/10 эт.
    5 550 000 Р
    Агент
    +7 (938) Показать номер
    Посмотреть контакты
    3-к кв. Волгоградская область, Волжский ул. 40 лет Победы, 50 (65.4 м) - Фото 1
    3-к кв. Волгоградская область, Волжский ул. 40 лет Победы, 50 (65.4 м) - Фото 2
    3-комнатная квартира, общая площадь 65м², жилая 39м², кухня 8м²

    Продается уютная трехкомнатная квартира для дружной семьи.Проcтоpная квaртиpa c удoбнoй планировкой, расположена на 3 этаже:Общая площадь 65,4 кв.м.Кухня -8 кв.мТри изолированные комнаты - 17, 13, 9 кв.м.Рядом с кухней имеется кладовка. Потолки многоуровневые,...
    • 65 м²
    • 3-ком
    • 3/9 эт.
    5 600 000 Р
    Агент
    +7 (987) Показать номер
    Посмотреть контакты
    3-к кв. Волгоградская область, Волжский просп. Дружбы, 47 (68.0 м) - Фото 1
    3-к кв. Волгоградская область, Волжский просп. Дружбы, 47 (68.0 м) - Фото 2
    3-комнатная квартира, общая площадь 68м², жилая 41м², кухня 8м²

    3-к квартира по адресу: Дружбы пр-кт, д. 47 в районе Новый город Волжского;Улучшенная планировка: общая 68.00 / жилая 41.00 / кухня 8.50Раздельные комнаты: 18 + 13 + 10 метровПластиковые окна. на полу ламинат. Раздельный санузел. Есть застекленная пластиком...
    • 68 м²
    • 3-ком
    • 8/9 эт.
    • панельный
    5 600 000 Р
    Агент
    +7 (989) Показать номер
    Посмотреть контакты

    Не нашли подходящего объявления?

    Оставьте заявку, и наши риэлторы подберут квартиру в районе Волжского

    (0)