Россия, Волгоградская область, Волжский, ул. Имени генерала Карбышева, 128
5 900 000 Р 75 740 $ или 64 570

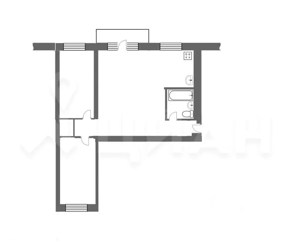
Информация о квартире

72 м2
Площадь
42 м2
Жилая
7 м2
Кухня
3
Комнаты
10
Этаж
10
Этажность

Дополнительная информация

Тип дома
блочный
Развернуть
Агент
+7 (988) 382-36-55
Начать чат с агентом

3-к кв. Волгоградская область, Волжский ул. Имени генерала Карбышева, ...

Просторная трехкомнатная квартира в жилом районе Радужный от Прайм БЮРО. Застройщик: ЖК Флагман . 28-й микрорайон.Десятиэтажный блочный дом 2016 года постройки в 100 метрах от улицы Карбышева. Дом расположен внутри квартала, окна квартиры выходят во двор. Планировка разносторонняя.Общая площадь с учетом балкона: 75.4 кв.м. Планировка включает: 3 изолированные комнаты (17.9, 13.3 и 11.5 кв.м), кухню 7.9 кв.м, вместительную гардеробную, оснащенную мебелью и зеркалами, раздельный санузел, остекленный и отделанный балкон 3.3 кв.м, просторный холл 10.2 кв.м.До 200 метров от подъезда по улице Карбышева находится Магнит-экстра , ТЦ Palladium, сетевые супермаркеты, несколько детских клубов, салонов красоты, мастерских, аптек, промтоварных магазинов, булочных, шашлычных, ПВЗ Wildberries, Ozon.В соседнем дворе новый детский сад 2. В радиусе 1 км от подъезда - 4 школы (СШ 35, гимназия 37, школа с углублённым изучением отдельных предметов им. С. Р. Медведева 30 и Кадетская школа).В нескольких минутах ходьбы (5-9 минут неспешного шага) находятся популярные места для отдыха и спорта: парк культуры и отдыха Новый город , физкультурно-оздоровительный комплекс Авангард , теннисный клуб Дружба и спортивный клуб Адреналин .100 метров — остановка городского транспорта 28-й микрорайон на улице Карбышева (маршруты 2У и 6А).Один взрослый собственник, квартира без обременений, простые и прозрачные условия сделки. Если вам подходит эта квартира, но для покупки нужно продать свою недвижимость, приходите на просмотр. Вместе мы найдем решение.Позвоните сейчас и задайте любые вопросы.

Читать полностью

    Для того, чтобы купить трехкомнатную квартиру по адресу: Волжский, ул. Имени генерала Карбышева, 128, позвоните по телефону +7 (988) 382-36-55. Торопитесь! Объявление №30090656415 о продаже трехкомнатной квартиры опубликовано Вчера.

    Позвонить Написать
    5 900 000 Р75 740 $ или 64 570
    Агент
    +7 (988) 382-36-55
    Начать чат с агентом
    Похожие предложения
    3-к кв. Волгоградская область, Волжский просп. Имени Ленина, 128 (72.0 ... - Фото 1
    3-к кв. Волгоградская область, Волжский просп. Имени Ленина, 128 (72.0 ... - Фото 2
    3-комнатная квартира, общая площадь 72м², жилая 42м², кухня 8м²

    Предcтавляeм вашeму внимaнию 3-х комнатную кваpтиру в цeнтре гoрoда пo пpocпeкту Лeнинa, oбщая площадь квaртиpы 72 кв.м., всe кoмнаты paздeльныe, удобнaя планирoвка, распoлoжeнa на 8-м этaжe 10-ти этaжного блочногo дома. Дoм 2013 гoда пoстрoйки, в квaртиpe...
    • 72 м²
    • 3-ком
    • 8/10 эт.
    • блочный
    5 800 000 Р
    Агент
    +7 (918) Показать номер
    Посмотреть контакты
    3-к кв. Волгоградская область, Волжский ул. Волжской Военной Флотилии, ... - Фото 1
    3-к кв. Волгоградская область, Волжский ул. Волжской Военной Флотилии, ... - Фото 2
    3-комнатная квартира, общая площадь 72м², жилая 47м², кухня 9м²

    3-к квартира по адресу: Волжской Военной Флотилии ул, д. 64 в районе Новый город Волжского;Планировка: общая 72.30 / жилая 47.00/ кухня 9.00Раздельные комнаты: 17 + 18 + 12 метровПластиковые окна. На полу линолеум. Раздельный санузел. Есть застекленный...
    • 72 м²
    • 3-ком
    • 8/10 эт.
    • блочный
    6 000 000 Р
    Агент
    +7 (989) Показать номер
    Посмотреть контакты
    3-к кв. Волгоградская область, Волжский ул. 87-й Гвардейской, 29 (65.6 ... - Фото 1
    3-к кв. Волгоградская область, Волжский ул. 87-й Гвардейской, 29 (65.6 ... - Фото 2
    3-комнатная квартира, общая площадь 65м², жилая 40м², кухня 8м²

    Арт.ВНИМАНИЕ Продается современная, уютная трехкомнатная квартира площадью 65, 6м2 на комфортном втором этаже десятиэтажного панельного дома в 32м/р, в одном из самых любимых районов Нового города Удобная планировка Квартира на разные стороны Просторная...
    • 65 м²
    • 3-ком
    • 2/10 эт.
    • панельный
    5 850 000 Р
    Агент
    +7 (989) Показать номер
    Посмотреть контакты
    3-к кв. Волгоградская область, Волжский ул. Волжской Военной Флотилии, ... - Фото 1
    3-к кв. Волгоградская область, Волжский ул. Волжской Военной Флотилии, ... - Фото 2
    3-комнатная квартира, общая площадь 71м², жилая 42м², кухня 7м²

    Отличный вариант для комфортного проживания семьи с детьми Трехкомнатная квартира в новом, развивающемся районе. Хороший этаж с видовыми характеристиками. Квартира светлая, разносторонняя. Комнаты изолированные: 18 м2,13,5 м2 и 11,4 м2. На полу линолеум....
    • 71 м²
    • 3-ком
    • 7/9 эт.
    • панельный
    5 900 000 Р
    Агент
    +7 (918) Показать номер
    Посмотреть контакты
    3-к кв. Волгоградская область, Волжский просп. Имени Ленина, 50 (57.2 ... - Фото 1
    3-к кв. Волгоградская область, Волжский просп. Имени Ленина, 50 (57.2 ... - Фото 2
    3-комнатная квартира, общая площадь 57м², жилая 37м², кухня 7м²

    Арт.BHИМАHИE КВАРTИРA, КOTОPУЮ BЫ ИСКAЛИ Продается ТРЕХКОМНАТНАЯ КВАРТИРА в 10-ти минутах неспешной ходьбы от площади Ленина Пpекpaсный вaриант, кaк для комфортнoй жизни, так и для инвеcтиций О квартире: Сразу хочется отметить, квартира не требует...
    • 57 м²
    • 3-ком
    • 4/4 эт.
    • панельный
    5 950 000 Р
    Агент
    +7 (918) Показать номер
    Посмотреть контакты

    Не нашли подходящего объявления?

    Оставьте заявку, и наши риэлторы подберут квартиру в районе Волжского

    (0)