4 500 000 Р 55 430 $ или 47 850

Информация о квартире

55 м2
Площадь
39 м2
Жилая
6 м2
Кухня
3
Комнаты
5
Этаж
5
Этажность

Дополнительная информация

Тип дома
панельный
Развернуть
Агент
Владимир Домашкин (Прайм Бюро)
+7 (988) 021-18-31
Начать чат с агентом

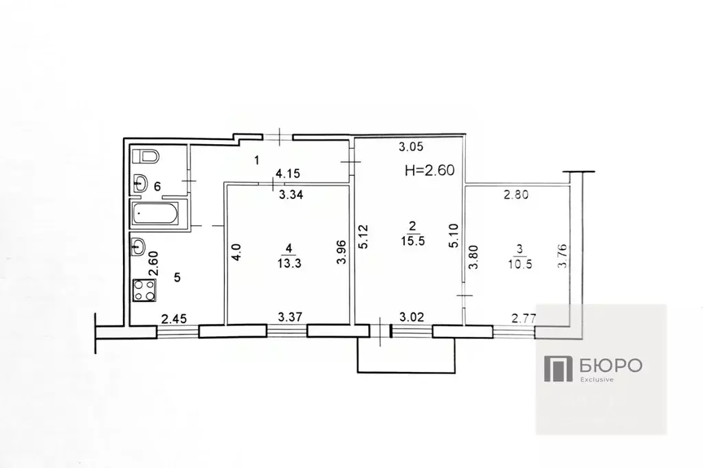
3-к кв. Волгоградская область, Волжский просп. Дружбы, 15 (55.0 м)

Трехкомнатная квартира с ремонтом в удобном месте. 18-й микрорайон.Дом расположен на пересечении Дружбы и Пионерской, окна квартиры выходят на сквер по проспекту Дружбы.Общая площадь с учетом балкона: 57.1 кв. м. Планировка включает: 3 комнаты (15.5, 13.3 и 10.5 кв. м), кухню 6.5 кв. м, совмещенный санузел, остекленный балкон площадью 2.1 кв. м.В соседнем дворе расположена Русско-американская школа. В радиусе 350 метров находятся средние школы 9, 27 и 28 и 4 детских сада. Позади дома находятся популярные зоны для отдыха и прогулок: парк 40-летия Победы, расположенный на улице Пионерской, а также новый сквер на проспекте Дружбы.50 метров от подъезда — остановка городского транспорта Пионерская (маршруты 1, 3 и 160). До улицы Мира 5 минут (500 метров) неспешного шага через парк.Собственники взрослые, квартира без обременений, сделка возможна в любое время, ключи отдадим в день сделки.Если эта квартира вас заинтересовала, но для покупки нужно продать свою недвижимость, приходите. Мы постараемся найти приемлемое решение.Звоните сейчас и задавайте любые вопросы.

Читать полностью

    Для того, чтобы купить трехкомнатную квартиру по адресу: Волжский, просп. Дружбы, 15, позвоните по телефону +7 (988) 021-18-31. Торопитесь! Объявление №30090771078 о продаже трехкомнатной квартиры опубликовано 02 октября 2025.

    Позвонить Написать
    4 500 000 Р55 430 $ или 47 850
    Агент
    Владимир Домашкин (Прайм Бюро)
    +7 (988) 021-18-31
    Начать чат с агентом
    Похожие предложения
    3-к кв. Волгоградская область, Волжский Пионерская ул., 15 (57.0 м) - Фото 1
    3-к кв. Волгоградская область, Волжский Пионерская ул., 15 (57.0 м) - Фото 2
    3-комнатная квартира, общая площадь 57м², жилая 38м², кухня 6м²

    3-к квартира по адресу: Пионерская ул, д. 15 в районе Новый город Волжского;Брежневская планировка: общая 57.00 / жилая 38.10 / кухня 6.60Комнаты: 14.90 + 12.70 + 10.50 метровКвартира в хорошем состоянии. Пластиковые окна. На полу линолеум. Раздельный...
    • 57 м²
    • 3-ком
    • 3/5 эт.
    • панельный
    4 400 000 Р
    Агент
    +7 (989) Показать номер
    Посмотреть контакты
    1-к кв. Волгоградская область, Волжский пл. Труда, 2А (64.0 м) - Фото 1
    1-к кв. Волгоградская область, Волжский пл. Труда, 2А (64.0 м) - Фото 2
    1-комнатная квартира, общая площадь 64м², жилая 18м², кухня 31м²

    1-к квартира по адресу: Труда пл, д. 2А в районе Новый город Волжского;Элитная планировка: общая 64.00 / жилая 18.60 / кухня 31.00 Квapтиpa свободной планировки, подготовлена под чистовую отделку. Пластиковые окна. Есть застекленный пластиком балконКвартира...
    • 64 м²
    • 1-ком
    • 7/16 эт.
    • кирпичный
    4 490 000 Р
    Агент
    +7 (989) Показать номер
    Посмотреть контакты
    2-к кв. Волгоградская область, Волжский Пионерская ул., 43 (42.5 м) - Фото 1
    2-к кв. Волгоградская область, Волжский Пионерская ул., 43 (42.5 м) - Фото 2
    2-комнатная квартира, общая площадь 42м², жилая 26м², кухня 6м²

    Отличная квартира без вложений по отличной цене Не упустите шанс стать обладателем современной 2-комнатной квартиры, расположенной в 10/16 м-не, по адресу ул. Пионерская, 43.В шаговой доступности улицы Мира, Пушкина.Общая площадь — 42,5 кв.м.Кухня — 6,2...
    • 42 м²
    • 2-ком
    • 4/5 эт.
    4 500 000 Р
    Агент
    +7 (987) Показать номер
    Посмотреть контакты
    3-к кв. Волгоградская область, Волжский Пионерская ул., 40 (58.2 м) - Фото 1
    3-к кв. Волгоградская область, Волжский Пионерская ул., 40 (58.2 м) - Фото 2
    3-комнатная квартира, общая площадь 58м², жилая 42м², кухня 6м²

    3-к квартира по адресу: Пионерская ул, д. 40 в районе Старый город Волжского;Планировка: общая 58.20 / жилая 42.50 / кухня 6.30Раздельные комнаты: 18.50 + 12.40 + 11.60 метровКвартира в хорошем состоянии. Пластиковые окна. На полу линолеум. Раздельный...
    • 58 м²
    • 3-ком
    • 3/5 эт.
    • кирпичный
    4 500 000 Р
    Агент
    +7 (989) Показать номер
    Посмотреть контакты
    3-к кв. Волгоградская область, Волжский Оломоуцкая ул., 72 (65.8 м) - Фото 1
    3-к кв. Волгоградская область, Волжский Оломоуцкая ул., 72 (65.8 м) - Фото 2
    3-комнатная квартира, общая площадь 65м², жилая 39м², кухня 8м²

    Продается светлая очень теплая 3-х комнатная квартира в 24 микрорайоне. Общая площадь - 65,8 кв.м.Жилая площадь - 39,7 кв.м.Квартира ориентирована на разные стороны, что обеспечивает отличное проветривание и естественное освещение. Окна выходят на зеленый...
    • 65 м²
    • 3-ком
    • 9/9 эт.
    4 400 000 Р
    Агент
    +7 (988) Показать номер
    Посмотреть контакты

    Не нашли подходящего объявления?

    Оставьте заявку, и наши риэлторы подберут квартиру в районе Волжского

    (0)