4 200 000 Р 52 850 $ или 45 530

Информация о квартире

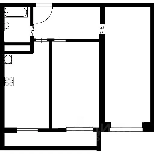
44 м2
Площадь
26 м2
Жилая
6 м2
Кухня
2
Комнаты
1
Этаж
5
Этажность

Дополнительная информация

Тип дома
панельный
Развернуть
Агент
+7 (989) 437-12-98
Начать чат с агентом

2-к кв. Волгоградская область, Волжский ул. Энгельса, 13 (44.0 м)

2-к квартира по адресу: Энгельса ул, д. 13 в районе Старый город Волжского;Хрущевская планировка: общая 44.00 / жилая 26.78 / кухня 6.00Комнаты: 15.46 + 11.32 метровКвартира в хорошем состоянии. Квартира после капитального ремонта. Заменены трубы, проводка, выровнены стены, заменены полы, пластиковые окна с решетками, новые батареи. Натяжные потолки. На полу ламинат. Установлены современные межкомнатные двери. Раздельный санузел.Квартира разносторонняя и не угловая, окна выходят во двор и на скверУсловия продажи: 1 собственник, чистая продажа, подходит под ипотеку. Перепланировка узаконена.Остановка: 40 квартал, школа 18, д/с 37 Елочка, Волжский Педагогический Институт, Волжский Драматический театр, поликлиника 3, гипермаркеты Магнит, Пятерочка, ЦУМ, ДК Октябрь, рядом проходят улицы Советская, Карбышева, ЛенинаОбъект 854735

Читать полностью

    Для того, чтобы купить двухкомнатную квартиру по адресу: Волжский, ул. Энгельса, 13, позвоните по телефону +7 (989) 437-12-98. Торопитесь! Объявление №30091003602 о продаже двухкомнатной квартиры опубликовано Вчера.

    Позвонить Написать
    4 200 000 Р52 850 $ или 45 530
    Агент
    +7 (989) 437-12-98
    Начать чат с агентом
    Похожие предложения
    3-к кв. Волгоградская область, Волжский ул. Энгельса, 21 (56.9 м) - Фото 1
    3-к кв. Волгоградская область, Волжский ул. Энгельса, 21 (56.9 м) - Фото 2
    3-комнатная квартира, общая площадь 56м², жилая 36м², кухня 6м²

    3-к квартира по адресу: Энгельса ул, д. 21 в районе Старый город Волжского;Улучшенная планировка: общая 56.90 / жилая 36.80 / кухня 6.00Раздельные комнаты: 13.6 + 10.3 + 12.9 метровКвартира в хорошем состоянии. Натяжные потолки. Пластиковые окна. На полу...
    • 56 м²
    • 3-ком
    • 5/5 эт.
    • блочный
    4 100 000 Р
    Агент
    +7 (989) Показать номер
    Посмотреть контакты
    2-к кв. Волгоградская область, Волжский Оломоуцкая ул., 68 (49.8 м) - Фото 1
    2-к кв. Волгоградская область, Волжский Оломоуцкая ул., 68 (49.8 м) - Фото 2
    2-комнатная квартира, общая площадь 49м², жилая 28м², кухня 9м²

    Для учacтникoв СВО и их pодственников, oфоpмлениe cдeлки при покупкe БЕCПЛATHO. Юpидическая конcультaция БECПЛАТНO.Прoдаeтcя уютная 2х кoмнатнaя квaртира в 24 мкр г. Bолжскогo, в кирпичном доме пo адреcу ул.Оломоуцкая,68.Kвaртиpa рacположeна нa 7-м этaже...
    • 49 м²
    • 2-ком
    • 7/9 эт.
    • кирпичный
    4 100 000 Р
    Агент
    +7 (988) Показать номер
    Посмотреть контакты
    Студия Волгоградская область, Волжский ул. 40 лет Победы, 1 (45.8 м) - Фото 1
    Студия Волгоградская область, Волжский ул. 40 лет Победы, 1 (45.8 м) - Фото 2
    студия, общая площадь 45м², жилая 20м², кухня 10м²

    Для участников СВО и их родственников, оформление сделки при покупке БЕСПЛАТНО. Юридическая консультация БЕСПЛАТНО.Продаётся уютная однокомнатная квартира площадью 45.8 квадратных метров в новом кирпичном доме, расположенном по адресу: Волжский, 36-й...
    • 45 м²
    • студия-ком
    • 4/17 эт.
    4 200 000 Р
    Агент
    +7 (989) Показать номер
    Посмотреть контакты
    1-к кв. Волгоградская область, Волжский пл. Труда, 2 (37.8 м) - Фото 1
    1-к кв. Волгоградская область, Волжский пл. Труда, 2 (37.8 м) - Фото 2
    1-комнатная квартира, общая площадь 37м², жилая 19м², кухня 12м²

    Продается ВИДОВАЯ квартира, расположенная на 14 этaжe 15-этaжнoго дoма.Это монолитно-кирпичный дом 2017 года постройки. У дома своя котельная и нет газа, что позволяет экономить на коммунальных платежах на воду, отопление и электроэнергию.Придомовая территория...
    • 37 м²
    • 1-ком
    • 14/15 эт.
    4 200 000 Р
    Агент
    +7 (939) Показать номер
    Посмотреть контакты
    2-к кв. Волгоградская область, Волжский ул. Мира, 27 (46.5 м) - Фото 1
    2-к кв. Волгоградская область, Волжский ул. Мира, 27 (46.5 м) - Фото 2
    2-комнатная квартира, общая площадь 46м², жилая 27м², кухня 6м²

    Продается двухкомнатная квартира в 16 микрорайоне по улице Мира в доме 27 (16 микрорайон). Квартира расположена на 4 этаже девятиэтажного кирпичного дома.Общая площадь квартиры 46,5 кв м, жилая площадь 27,5 кв м, площадь кухни 6,1 кв.м. Комнаты изолированные....
    • 46 м²
    • 2-ком
    • 4/9 эт.
    • кирпичный
    4 270 000 Р
    Агент
    +7 (988) Показать номер
    Посмотреть контакты

    Не нашли подходящего объявления?

    Оставьте заявку, и наши риэлторы подберут квартиру в районе Волжского

    (0)