Россия, Волгоградская область, Волжский, просп. Имени Ленина, 118
5 780 000 Р 71 460 $ или 61 890

Информация о квартире

57 м2
Площадь
35 м2
Жилая
9 м2
Кухня
2
Комнаты
7
Этаж
10
Этажность

Дополнительная информация

Тип дома
блочный
Развернуть
Агент
+7 (939) 408-81-13
Начать чат с агентом

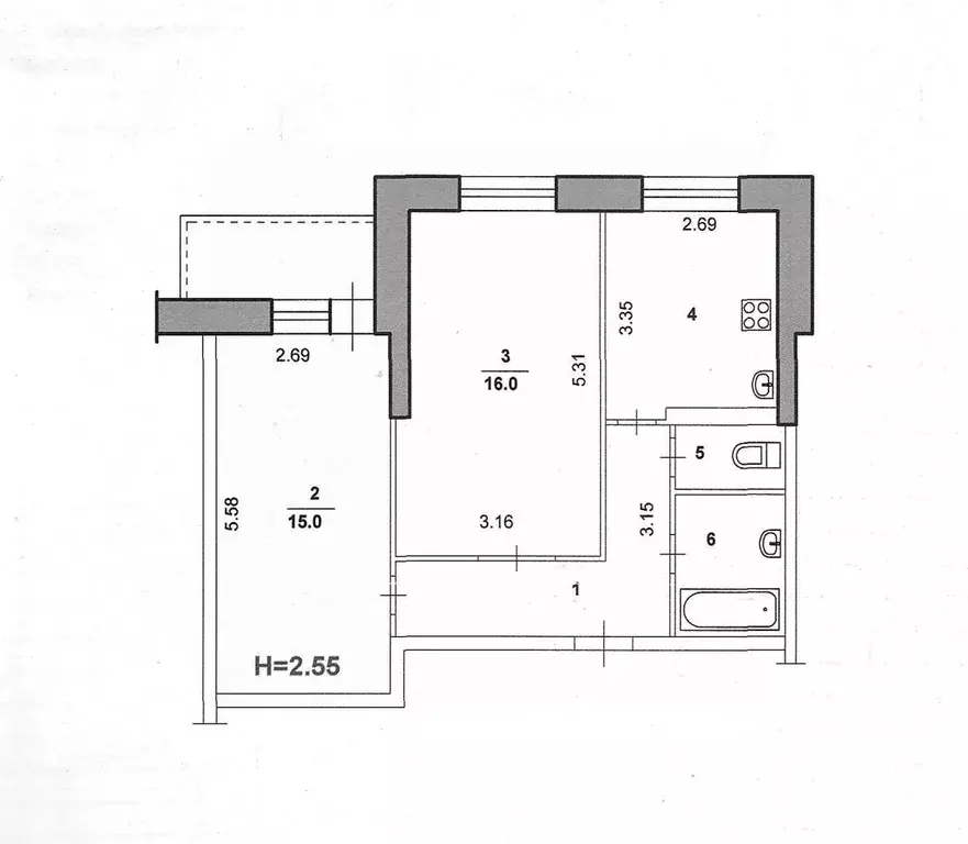
2-к кв. Волгоградская область, Волжский просп. Имени Ленина, 118 (57.8 ...

Продается двухкомнатная квартира в десятиэтажном доме на седьмом этаже, в 14 микрорайоне по проспекту Ленина, 118. Общая площадь квартиры 57,8 кв м, жилая комната 35,8 кв м, кухня 9,4 кв м. Год постройки дома 2014 г. В квартире произведен капитальный ремонт с использованием современных материалов. Дизайнерское решение позволило удобно зонировать территорию квартиры, с размещение зоны отдыха и систем хранения вещей. Установлены пластиковые окна, межкомнатные двери и качественная входная металлическая дверь. Стены в квартире выровнены. Потолки комбинированные, подвесные и натяжные с несколькими вариациями освещения. Напольное покрытие ламинат и керамическая плитка. Балкон остеклен пластиком и утеплен. Вход на балкон из кухни, такое удобство оценит любая хозяйка При продаже в квартире остается: кухонный гарнитур, варочная панель, вытяжка, две сплит-системы, встроенный вместительный шкаф-купе.Тихий двор дома оборудован детскими и спортивными площадками, озеленен клумбами, кустарниками и деревьями.Дом расположен в центральном районе города, с высокоразвитой инфраструктурой: множество магазинов продовольственных и промышленных товаров, Центральный рынок. А также детский сад и развлекательный центр. В непосредственной близости детская городская больница, детская и взрослая поликлиника, городские больницы им. Фишера и Шумакова, отделение Сбербанка , салон красоты и много других объектов, необходимых для жизнеобеспечения.ДЛЯ ЛЮБИТЕЛЕЙ АКТИВНОГО ОТДЫХА, В 15 МИНУТАХ ХОДЬБЫ ПРИРОДООХРАНЯЕМЫЙ ЛАНДШАФТ С РЕКОЙ АХТУБОЙ, что позволит с пользой провести выходные с семьей.Отличная транспортная развязка с направлением в любую часть города и междугороднее сообщение. Более подробную информацию можно узнать по телефону. Агентство недвижимости Дом, успешно работает более 25 лет на рынке недвижимости. В практике, ни одной расторгнутой сделки. Выкупаем квартиры за 3 часа. Надежные банки - наши партнеры. Решим вопросы любой сложности. БЫСТРО. ВЫГОДНО. НАДЕЖНО. Номер объекта: 1/543340/19420

Читать полностью

    Для того, чтобы купить двухкомнатную квартиру по адресу: Волжский, просп. Имени Ленина, 118, позвоните по телефону +7 (939) 408-81-13. Торопитесь! Объявление №30091246500 о продаже двухкомнатной квартиры опубликовано 31 октября 2025.

    Позвонить Написать
    5 780 000 Р71 460 $ или 61 890
    Агент
    +7 (939) 408-81-13
    Начать чат с агентом
    Похожие предложения
    2-к кв. Волгоградская область, Волжский ул. Мира, 131 (50.9 м) - Фото 1
    2-к кв. Волгоградская область, Волжский ул. Мира, 131 (50.9 м) - Фото 2
    2-комнатная квартира, общая площадь 50м², жилая 31м², кухня 8м²

    Продается двухкомнатная квартира, расположенная на шестом этаже десятиэтажного КИРПИЧНОГО дома по улице Мира в доме 131 (37 микрорайон). Застройщик Группа компаний Доминвест . Общая площадь квартиры 50,9 кв.м., жилая 31,0 кв.м., кухня 8,3 кв.м. Планировка...
    • 50 м²
    • 2-ком
    • 6/10 эт.
    • кирпичный
    5 730 000 Р
    Агент
    +7 (939) Показать номер
    Посмотреть контакты
    2-к кв. Волгоградская область, Волжский 37-й мкр,  (56.4 м) - Фото 1
    2-к кв. Волгоградская область, Волжский 37-й мкр,  (56.4 м) - Фото 2
    2-комнатная квартира, общая площадь 56м², жилая 36м², кухня 9м²

    2-к квартира по адресу: Мира ул, д. 131 в ЖК Бриз в районе Новый город Волжского;Элитная планировка: общая 56.40 / жилая 36.46 / кухня 9.34 кв. метров.Раздельные комнаты: 14.56 + 21.90 кв. метров.Квартира в очень хорошем состоянии. Натяжные потолки. Пластиковые...
    • 56 м²
    • 2-ком
    • 3/14 эт.
    • кирпичный
    5 750 000 Р
    Агент
    +7 (989) Показать номер
    Посмотреть контакты
    3-к кв. Волгоградская область, Волжский ул. Имени генерала Карбышева, ... - Фото 1
    3-к кв. Волгоградская область, Волжский ул. Имени генерала Карбышева, ... - Фото 2
    3-комнатная квартира, общая площадь 64м², жилая 39м², кухня 8м²

    Арт.ВНИМАНИЕ Продается светлая, уютная трехкомнатная квартира,площадью 64,7 м2 на десятом этаже десятиэтажного панельного дома, в одном из САМЫХ любимых и удобных для проживания районе Нового города - 32 м/p Отличная планировка Квартира на разные...
    • 64 м²
    • 3-ком
    • 10/10 эт.
    • панельный
    5 900 000 Р
    Агент
    +7 (988) Показать номер
    Посмотреть контакты
    4-к кв. Волгоградская область, Волжский Пионерская ул., 33 (57.8 м) - Фото 1
    4-к кв. Волгоградская область, Волжский Пионерская ул., 33 (57.8 м) - Фото 2
    4-комнатная квартира, общая площадь 57м², жилая 39м², кухня 7м²

    Арт.Предлагаем Вам приобрести 4-комнатную квартиру на комфортном втором этаже 5-этажного дома в 10 микрорайоне.О КВАРТИРЕ: в квартире выполнен современный капитальный ремонт с заменой всех коммуникаций, новая проводка, водопроводные трубы, везде установлены...
    • 57 м²
    • 4-ком
    • 2/5 эт.
    • панельный
    5 700 000 Р
    Агент
    +7 (988) Показать номер
    Посмотреть контакты
    3-к кв. Волгоградская область, Волжский Молодежная ул., 40 (98.6 м) - Фото 1
    3-к кв. Волгоградская область, Волжский Молодежная ул., 40 (98.6 м) - Фото 2
    3-комнатная квартира, общая площадь 98м², жилая 60м², кухня 20м²

    Арт.НЕ ХОТИТЕ ПЕРЕПЛАЧИВАТЬ ЗА ЧУЖОЙ РЕМОНТ??? ЭТО ПРЕДЛОЖЕНИЕ ДЛЯ ВАС Продается крупногабаритная трехкомнатная квартира в предчистовой отделке, можем рассмотреть обмен О КВАРТИРЕ:Квартира на разные стороны общей площадью 98, 6 м2, свободной планировки....
    • 98 м²
    • 3-ком
    • 1/2 эт.
    • кирпичный
    5 700 000 Р
    Агент
    +7 (988) Показать номер
    Посмотреть контакты

    Не нашли подходящего объявления?

    Оставьте заявку, и наши риэлторы подберут квартиру в районе Волжского

    (0)